| 建物種別 | 戸建て |
|---|---|
| 改修規模 | 全面リフォーム |
| 築年数 | 築25年 |
| 総工事面積 | 約91m2 |
| 施工期間 | 約60日 |
| 総工事費 | 約1370万円 |
| 地域 | 愛知県 |
| テーマ | バリアフリー、ペット |
間仕切壁を無くして左右対称の筋交表しに。強度を保ちながらダイニングキッチン・リビングが繋がった広々デザイン空間に。
天井から床までの大容量カップボードでスッキリ収納。扉を閉めれば重厚な家具調が空間にマッチ。並ぶと狭くなりがちなシンクも三方向から使えます。
奥の和室を洋室にやり替え、LDKと一体化。クローゼットとウォークインクローゼットを造り、収納を確保しました。
IHコンロは両面操作が可能。家族で楽しく温かい食卓を囲めます。マルチワイドは中央で2つのコンロがつながっているので大きい鍋も4品同時調理もラクラクです。
リビングのTV背面は調湿+脱臭機能がある内装材を貼りました。お部屋のアクセントと共に生活臭やペットの気になるニオイ対策としても◎
暖かく、お掃除しやすいユニットバスへ取替え。モノトーンの落ち着いた空間で、極上のリラックスバスタイムに。サイズも1717へワンサイズ大きいものを入れました。
物が溢れがちな脱衣室は吊戸棚とランドリーラックで収納力UP!スッキリ収納出来るようになりました。ランドリーラックはフレームだけなので窓から入る光も遮りません。
2階の降り口に洗面ボウルを設置。すぐに手洗いが出来て安心です。階段には手すりを取り付け、安全性も向上しました。
建具を一新+床の張り増しによりバリアフリーを実現しました。
Panasonic クロークボックス・VERITIS フロアーSハードコート
ランマをなくし、大きな引違い戸へお取替え。印象がガラリと変わりました。リモコンキーで簡単施開錠
水廻りの老朽化と物で溢れ返ったLDKをなんとかしたい…とのお悩みから、リフォームのご相談を頂きました。
お話を伺っていくと「本当は物が少ないスッキリとした家が理想」「夫と子供、かわいいペット達と明るく楽しく過ごしたい!」とのご要望を頂きました。
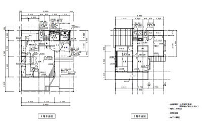
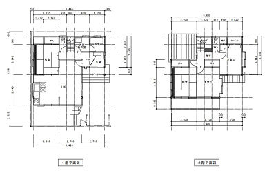
手狭になっていたLDKは間仕切で和室となっていた一角を洋室にやり替え、元々のLDKと一体化することで広々としたLDKとなりました。壁際にクローゼットを増設。和室の押入だった部分は拡張してウォークインクローゼットに変更しました。
構造上外せない柱は筋かい表し仕上とした事で強度を維持しつつも開放的なLDKとなりました。


部屋の一番奥に壁を向いて設置されたキッチン。

間仕切壁を無くして左右対称の筋交表しに。強度を保ちながらダイニングキッチン・リビングが繋がった広々デザイン空間に。

天井から床までの大容量カップボードでスッキリ収納。扉を閉めれば重厚な家具調が空間にマッチ。並ぶと狭くなりがちなシンクも三方向から使えます。
せり出した壁がダイニングスペースを圧迫していました。

奥の和室を洋室にやり替え、LDKと一体化。クローゼットとウォークインクローゼットを造り、収納を確保しました。

IHコンロは両面操作が可能。家族で楽しく温かい食卓を囲めます。マルチワイドは中央で2つのコンロがつながっているので大きい鍋も4品同時調理もラクラクです。

リビングのTV背面は調湿+脱臭機能がある内装材を貼りました。お部屋のアクセントと共に生活臭やペットの気になるニオイ対策としても◎
