PanasonicリフォームClub
TOP TOPリフォーム事例検索詳細

愛知県 N様邸

奥様へのプレゼントは夢の対面キッチン。こだわりをつめこんだLDK。

お店の情報  このお店の他の事例を見る
データ
建物種別 戸建て
改修規模 全面リフォーム
築年数 築25年
総工事面積 約91m2
施工期間 約60日
総工事費 約1370万円
地域 愛知県
テーマ バリアフリー、ペット
全国の「Panasonic リフォーム Club」のお店をさがす
リフォームポイント

水廻りの老朽化と物で溢れ返ったLDKをなんとかしたい…とのお悩みから、リフォームのご相談を頂きました。
お話を伺っていくと「本当は物が少ないスッキリとした家が理想」「夫と子供、かわいいペット達と明るく楽しく過ごしたい!」とのご要望を頂きました。
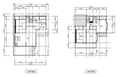
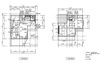
手狭になっていたLDKは間仕切で和室となっていた一角を洋室にやり替え、元々のLDKと一体化することで広々としたLDKとなりました。壁際にクローゼットを増設。和室の押入だった部分は拡張してウォークインクローゼットに変更しました。
構造上外せない柱は筋かい表し仕上とした事で強度を維持しつつも開放的なLDKとなりました。

お客様の声
「キッチンが対面式となり、背面の収納も充実して満足しています。」とのお声を頂きました。また、ヴィンテージモダンな内装も気に入って頂けました。
担当者の声
大矢 浩司

抜けない柱が入っている壁は柱表しにすることで圧迫感を軽減しました。
木目や石目など柄が多くなったので色味を合わせ、くどすぎない空間づくりを意識しました。
ビフォーアフター
ビフォー

部屋の一番奥に壁を向いて設置されたキッチン。

アフター

間仕切壁を無くして左右対称の筋交表しに。強度を保ちながらダイニングキッチン・リビングが繋がった広々デザイン空間に。

ビフォー

アフター

天井から床までの大容量カップボードでスッキリ収納。扉を閉めれば重厚な家具調が空間にマッチ。並ぶと狭くなりがちなシンクも三方向から使えます。

ビフォー

せり出した壁がダイニングスペースを圧迫していました。

アフター

奥の和室を洋室にやり替え、LDKと一体化。クローゼットとウォークインクローゼットを造り、収納を確保しました。

ビフォー

アフター

IHコンロは両面操作が可能。家族で楽しく温かい食卓を囲めます。マルチワイドは中央で2つのコンロがつながっているので大きい鍋も4品同時調理もラクラクです。

ビフォー

アフター

リビングのTV背面は調湿+脱臭機能がある内装材を貼りました。お部屋のアクセントと共に生活臭やペットの気になるニオイ対策としても◎

ビフォー

アフター

施工店情報
パナソニックリフォームクラブ
矢野建設株式会社
(旧:リファインみなと)

〒455-0831
住所:愛知県名古屋市港区十一屋3丁目63番地
電話:052-384-2800 FAX:052-398-8451

■運営会社名 矢野建設株式会社
■建設業 国土交通大臣許可(特-5)第20106号
■建築士事務所 一級建築士事務所:愛知県知事登録(い-5)第4001号

このお店の情報・事例を見る
矢野建設株式会社(旧:リファインみなと)のリフォーム事例一覧
このお店の他の事例を見る
ページの先頭へ