PanasonicリフォームClub
TOP TOPリフォーム事例検索検索結果詳細

愛知県 N様邸

パナソニックショウルームで“イロリ”に一目惚れ

お店の情報・お問い合わせ  このお店の他の事例を見る
データ
建物種別 戸建て
改修規模 全面リフォーム
築年数 築25年
工事面積 約39m2
施工期間 約60日
工事費 約668万円
地域 愛知県
テーマ バリアフリー、ペット
全国の「Panasonic リフォーム Club」のお店をさがす
リフォームポイント

プランの確認をする為、奥様とパナソニックショウルームへ。
目的の展示へ辿り着く前に奥様の目に止まったのは“イロリ”。
簡単な説明をさせて頂くと気に入って頂き、旦那様へ交渉することに!
思わぬ買い物に旦那様はたじたじでしたが、最後は「奥さんがきにいったなら…」とご採用頂くこととなりました!
今では夏はもんじゃ、冬はお鍋と家族で“イロリ”を囲んで楽しくお食事をしているそうです!

お客様の声
「キッチンが対面式となり、背面の収納も充実して満足しています。」とのお声を頂きました。また、ヴィンテージモダンな内装も気に入って頂けました。
担当者の声
大矢 浩司

抜けない柱が入っている壁は柱表しにすることで圧迫感を軽減しました。
木目や石目など柄が多くなったので色味を合わせ、くどすぎない空間づくりを意識しました。
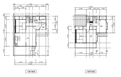
ビフォーアフター
ビフォー

部屋の一番奥に壁を向いて設置されたキッチン。

アフター

間仕切壁を無くして左右対称の筋交表しに。強度を保ちながらダイニングキッチン・リビングが繋がった広々デザイン空間に。

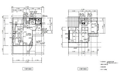
ビフォー

アフター

天井から床までの大容量カップボードでスッキリ収納。扉を閉めれば重厚な家具調が空間にマッチ。並ぶと狭くなりがちなシンクも三方向から使えます。

ビフォー

せり出した壁がダイニングスペースを圧迫していました。

アフター

奥の和室を洋室にやり替え、LDKと一体化。クローゼットとウォークインクローゼットを造り、収納を確保しました。

ビフォー

アフター

IHコンロは両面操作が可能。家族で楽しく温かい食卓を囲めます。マルチワイドは中央で2つのコンロがつながっているので大きい鍋も4品同時調理もラクラクです。

ビフォー

アフター

リビングのTV背面は調湿+脱臭機能がある内装材を貼りました。お部屋のアクセントと共に生活臭やペットの気になるニオイ対策としても◎

ビフォー

アフター

施工店情報
パナソニックリフォームクラブ
矢野建設株式会社
(旧:リファインみなと)

〒455-0831
住所:愛知県名古屋市港区十一屋3丁目63番地
電話:052-384-2800 FAX:052-398-8451

■運営会社名 矢野建設株式会社
■建設業 国土交通大臣許可(特-5)第20106号
■建築士事務所 一級建築士事務所:愛知県知事登録(い-5)第4001号

このお店の情報・事例を見る
矢野建設株式会社(旧:リファインみなと)のリフォーム事例一覧
このお店の他の事例を見る
ページの先頭へ