| 建物種別 | 戸建て |
|---|---|
| 改修規模 | 全面リフォーム |
| 築年数 | 築55年 |
| 工事面積 | 約38m2 |
| 施工期間 | 約70日 |
| 工事費 | 約310万円 |
| 地域 | 愛知県 |
| 家族構成 | お兄様+妹ご夫婦 |
| テーマ | 二世帯、バリアフリー、その他 |
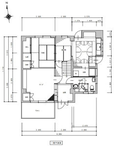
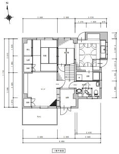
サンルームを減らして狭くなった分、和室を縮小し、リビングの広さを確保しました。間仕切建具を3枚引戸にすることで開放的な和室になりました
ガラス障子はそのまま再利用しました。仏間・押入部分を新しい生活スタイルに合わせて割振りをやり替えました。
既設の部材を一部残したい。というご要望から棚板をリメイクして再利用しました。昔の面影を残したことで"懐かしさを感じられる"と喜んで頂けました。
フローリングをやり替え、ナチュラルカラーでまとめたリビングに。
サンルームをテラスに変え、開放的な窓まわりになりました。シャッターは耐風タイプなので台風がきても安心してお過ごし頂けます。
既設の部材を一部残したい。というご要望から棚板をリメイクして再利用しました。昔の面影を残したことで"懐かしさを感じられる"と喜んで頂けました。
ガラス障子はそのまま再利用しました。仏間・押入部分を新しい生活スタイルに合わせて割振りをやり替えました。
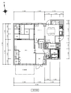
サンルームを減らして狭くなった分、和室を縮小し、リビングの広さを確保しました。間仕切建具を3枚引戸にすることで開放的な和室になりました



サンルームを減らして狭くなった分、和室を縮小し、リビングの広さを確保しました。間仕切建具を3枚引戸にすることで開放的な和室になりました

ガラス障子はそのまま再利用しました。仏間・押入部分を新しい生活スタイルに合わせて割振りをやり替えました。

既設の部材を一部残したい。というご要望から棚板をリメイクして再利用しました。昔の面影を残したことで"懐かしさを感じられる"と喜んで頂けました。

フローリングをやり替え、ナチュラルカラーでまとめたリビングに。

サンルームをテラスに変え、開放的な窓まわりになりました。シャッターは耐風タイプなので台風がきても安心してお過ごし頂けます。
