| 建物種別 | 戸建て |
|---|---|
| 改修規模 | 全面リフォーム |
| 築年数 | 築55年 |
| 総工事面積 | 約105m2 |
| 施工期間 | 約70日 |
| 総工事費 | 約1340万円 |
| 地域 | 愛知県 |
| 家族構成 | お兄様+妹ご夫婦 |
| テーマ | 二世帯、バリアフリー、その他 |
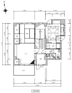
サンルームを減らして狭くなった分、和室を縮小し、リビングの広さを確保しました。間仕切建具を3枚引戸にすることで開放的な和室になりました
ガラス障子はそのまま再利用しました。仏間・押入部分を新しい生活スタイルに合わせて割振りをやり替えました。
既設の部材を一部残したい。というご要望から棚板をリメイクして再利用しました。昔の面影を残したことで"懐かしさを感じられる"と喜んで頂けました。
フローリングをやり替え、ナチュラルカラーでまとめたリビングに。
サンルームをテラスに変え、開放的な窓まわりになりました。シャッターは耐風タイプなので台風がきても安心してお過ごし頂けます。
垂れ壁があるため天井を塞ぎ、フードは平型タイプを採用しました。
Panasonic ラクシーナ ネオマーブル柄ホワイト
■スキマレスシンク
■エコカチットサラサラワイドシャワー水栓
■クッキングコンセント
■ガラストップガスコンロ・両面焼きワイドグリル
■耐震ロック
■スライドレールソフトクロージング
在来工法の小さくて狭い浴室でしたが、リフォムス1616を採用し、あたたかく安心して入れる安らぎの空間となりました。
Panasonicリフォムス チェリー×モザイクベージュ
①つかまりやすい おきラクてすりで安心!
②浴槽が低くまたぎやすくて安心!
③床暖房+すべりにくい スミピカフロアで安心!
浴室まるごと断熱&保温浴槽で暖かさを逃がさずお湯も冷めにくいから快適でエコ+ヒートショック対策効果的です。スゴピカ素材だからお掃除もラクラクです。
洗面化粧台は浴室と同色のチェリー×モザイクベージュを採用しました。サイドにトールラックを組み合わせ、使い勝手の良い洗面スペースとなりました。
Panasonic シーライン
1階のトイレは停電になっても電池で水を流せるPanasonic アラウーノL150を採用。ボタンを押すだけなので操作も簡単で安心してお使い頂けます。汚れにくいスゴピカ素材・激落ちバブル・トリプル汚れガード+お掃除しやすいスキマレス設計・クリーンスライド設計。更にエコナビセンサー・速暖で電気代も節約。
以前はパンチカーペット貼りの階段でしたが、転倒防止対策として、ノンスリップ付きのリフォーム階段上貼りタイプを採用しました。手すりも取り付けたので不安感が解消されました。Panasonic システム階段リフォーム上貼りタイプ/連続手すり
階段下のスペースは収納にし、有効活用しています。
以前の玄関ドアは汎用アルミドアで防犯面が不安でしたが、リフォーム用の玄関ドアへ取替え防犯・断熱性能を向上。お出かけに便利なミラー付きのクロークボックスも設置しました。
Panasonic クロークボックス
ランマをなくし、ドア高さを上げる事で今時の玄関に。
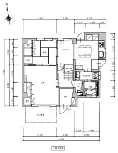
昔ながらの間取りで老後を過ごすには辛い我が家を安心して暮らせる家にしたい。とのご依頼を頂きました。
妹夫婦との同居となるので2階にもトイレが欲しい。とのご要望も頂きました。
浴室・洗面脱衣室・トイレの間取りを可能な範囲で変更し、家の中で一番事故が起こりやすい浴室に注力しました。
小さくて狭い浴室はリフォムス1616を採用し、あたたかく安心して入れる安らぎの空間となりました。
トイレは停電になっても電池で水を流せるL150を採用。ボタンを押すだけなので操作も簡単で安心してお使い頂けます。
また、既設の部材を残したい。というご要望から一部の建具や棚板をそのまま再利用致しました。
昔の面影を残すことで?懐かしさを感じられる”と喜んで頂けました。



サンルームを減らして狭くなった分、和室を縮小し、リビングの広さを確保しました。間仕切建具を3枚引戸にすることで開放的な和室になりました

ガラス障子はそのまま再利用しました。仏間・押入部分を新しい生活スタイルに合わせて割振りをやり替えました。

既設の部材を一部残したい。というご要望から棚板をリメイクして再利用しました。昔の面影を残したことで"懐かしさを感じられる"と喜んで頂けました。

フローリングをやり替え、ナチュラルカラーでまとめたリビングに。

垂れ壁があるため天井を塞ぎ、フードは平型タイプを採用しました。
Panasonic ラクシーナ ネオマーブル柄ホワイト
■スキマレスシンク
■エコカチットサラサラワイドシャワー水栓
■クッキングコンセント
■ガラストップガスコンロ・両面焼きワイドグリル
■耐震ロック
■スライドレールソフトクロージング
