PanasonicリフォームClub
TOP TOPリフォーム事例検索検索結果詳細

愛知県 U様邸

”シンプルだけどオシャレ”が一番ステキ

お店の情報  このお店の他の事例を見る
データ
建物種別 戸建て
改修規模 改装・設備交換
築年数 築36年
総工事面積 約105m2
施工期間 約110日
総工事費 約1025万円
地域 愛知県
家族構成 ご夫婦+お子様
テーマ バリアフリー、広々、その他
全国の「Panasonic リフォーム Club」のお店をさがす
リフォームポイント

元々は倉庫だった建物を住宅として改装して使用していたため、スチールサッシの隙間風や断熱性の悪さに困っていたのですが、設備も老朽化してきたので今回一括してご相談を受けました。
お話を頂く前に奥様にて下調べをして頂いており、メーカーはPanasonicに決まりました。
凝ったことはせず、和の要素を入れつつシンプルにまとめたい。とのご希望もあり、ボルドーのキッチンをアクセントとした和モダンな空間にしました。
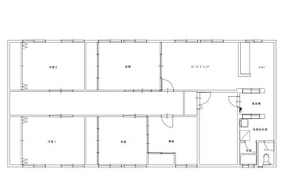
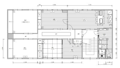
大きな間取り変更はありませんが、年末年始に大人数で集まれるよう、スクリーンウォールを採用、洋室とLDKを1つの大空間へ出来るようにしました。
仕事・家事・育児をこなす奥様に少しでもゆっくりできる時間を過ごして頂くために家事ラクな設備を盛り込みました。
廊下との段差の解消や外窓の交換、壁・天井の断熱性能を高め、暮らしやすいにこだわったリフォームとなりました。

お客様の声
窓の取替や断熱を入れてもらったおかげで、工事前と比べはるかに部屋が暖かくなりました!
冬だけど昼間は暖房要らずで快適です。
水廻り設備も使いやすくて大満足です。
担当者の声
大矢浩司

奥様と内装や設備について打合せをさせて頂く際、理想をしっかり伝えて頂けたのでとてもプランニングがしやすかったです。落ちついた雰囲気の内装にアクセントとしてボルドーのキッチンをご提案させて頂いた際も、イメージコンセプトをお伝えすると快くご採用頂き嬉しくなったのを覚えています。
ビフォーアフター
ビフォー

アフター

造作壁を取り払い、より開放感のあるキッチンになりました。ボルドーのキッチンをアクセントとした和モダンな空間にしました。

ビフォー

アフター

Panasonicラクシーナを採用。自動でお掃除のクリーンフード、三角よりも横一列で使いやすいトリプルワイドIHは空いた手前のスペースは材料の仮置きや盛り付けも出来て、作業効率もUP。

ビフォー

アフター

Panasonicスクリーンウォールを設置して、客間とLDKを間仕切りました。

ビフォー

アフター

スクリーンウォールを閉めた状態でも扉が付いているのでTPOに合わせた。お部屋づかいが可能になりました。

ビフォー

アフター

間仕切りにはウォールスクリーンを採用。普段は客間、壁際へ寄せればLDKとつながり大広間へ。年末年始、親戚一同で大宴会も◎

ビフォー

アフター

施工店情報
パナソニックリフォームクラブ
矢野建設株式会社
(旧:リファインみなと)

〒455-0831
住所:愛知県名古屋市港区十一屋3丁目63番地
電話:052-384-2800 FAX:052-398-8451

■運営会社名 矢野建設株式会社
■建設業 国土交通大臣許可(特-5)第20106号
■建築士事務所 一級建築士事務所:愛知県知事登録(い-5)第4001号

このお店の情報・事例を見る
矢野建設株式会社(旧:リファインみなと)のリフォーム事例一覧
このお店の他の事例を見る
ページの先頭へ