| 建物種別 | 戸建て |
|---|---|
| 改修規模 | 改装・設備交換 |
| 築年数 | 築36年 |
| 総工事面積 | 約105m2 |
| 施工期間 | 約110日 |
| 総工事費 | 約1025万円 |
| 地域 | 愛知県 |
| 家族構成 | ご夫婦+お子様 |
| テーマ | バリアフリー、広々、その他 |
造作壁を取り払い、より開放感のあるキッチンになりました。ボルドーのキッチンをアクセントとした和モダンな空間にしました。
Panasonicラクシーナを採用。自動でお掃除のクリーンフード、三角よりも横一列で使いやすいトリプルワイドIHは空いた手前のスペースは材料の仮置きや盛り付けも出来て、作業効率もUP。
Panasonicスクリーンウォールを設置して、客間とLDKを間仕切りました。
スクリーンウォールを閉めた状態でも扉が付いているのでTPOに合わせた。お部屋づかいが可能になりました。
間仕切りにはウォールスクリーンを採用。普段は客間、壁際へ寄せればLDKとつながり大広間へ。年末年始、親戚一同で大宴会も◎
以前はすき間風が入り、建付けの悪い外窓でした。
外窓はペアガラス窓へ取り替えました。また、天井と一部の壁に断熱材を入れ、省エネ性能が向上しました。
Panasonic MRを採用。お掃除がしやすく、浴槽がまたぎやすくなりました。冬場の寒さ対策に、壁面浴室暖房を設置しました。
・酸素美泡湯
全身を微発泡が包み身体のポカポカが長続き。
お肌もすべすべになります。入浴剤より経済的です!
入浴中の息苦しさも無いので長湯の方にもおすすめです。
Panasonicウツクシーズを採用。上部からの吐水なのでお掃除もしやすく、キレイが長続き。ミラーキャビネットへの収納で小物類もスッキリ!
PanasonicアラウーノS2お掃除しやすく汚さないを追求した
・ひとふき形状
・スゴピカ素材
・激落ちバブル
・スパイラル水流
サイドのカウンターは手摺り代わりにもなります。
パントリーにニッチ収納を設け、小物類もスッキリと収納出来るようにしました。
和室は畳を琉球風畳の銀白色×黄金色に。襖からPanasonic VERITIS建具に収納も変更しました。
廊下、和室、寝室、トイレ等各所の段差を解消。お掃除も簡単に。
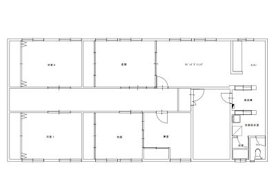
子供部屋は男の子用にクロスを貼り替えました。
フローリングを張り替え、造り付けのクローゼットも窓側から廊下側へと配置を変更。窓からの光が広がるようになり、お部屋が明るくなりました。
元々は倉庫だった建物を住宅として改装して使用していたため、スチールサッシの隙間風や断熱性の悪さに困っていたのですが、設備も老朽化してきたので今回一括してご相談を受けました。
お話を頂く前に奥様にて下調べをして頂いており、メーカーはPanasonicに決まりました。
凝ったことはせず、和の要素を入れつつシンプルにまとめたい。とのご希望もあり、ボルドーのキッチンをアクセントとした和モダンな空間にしました。
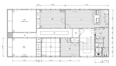
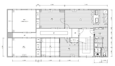
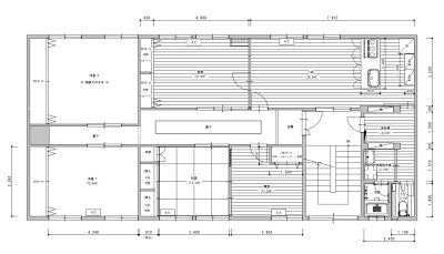
大きな間取り変更はありませんが、年末年始に大人数で集まれるよう、スクリーンウォールを採用、洋室とLDKを1つの大空間へ出来るようにしました。
仕事・家事・育児をこなす奥様に少しでもゆっくりできる時間を過ごして頂くために家事ラクな設備を盛り込みました。
廊下との段差の解消や外窓の交換、壁・天井の断熱性能を高め、暮らしやすいにこだわったリフォームとなりました。



造作壁を取り払い、より開放感のあるキッチンになりました。ボルドーのキッチンをアクセントとした和モダンな空間にしました。

Panasonicラクシーナを採用。自動でお掃除のクリーンフード、三角よりも横一列で使いやすいトリプルワイドIHは空いた手前のスペースは材料の仮置きや盛り付けも出来て、作業効率もUP。

Panasonicスクリーンウォールを設置して、客間とLDKを間仕切りました。

スクリーンウォールを閉めた状態でも扉が付いているのでTPOに合わせた。お部屋づかいが可能になりました。

間仕切りにはウォールスクリーンを採用。普段は客間、壁際へ寄せればLDKとつながり大広間へ。年末年始、親戚一同で大宴会も◎
