PanasonicリフォームClub
TOP TOPリフォーム事例検索検索結果詳細

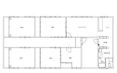
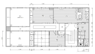
愛知県 U様邸

忙しい奥様に家事ラク設備

お店の情報・お問い合わせ  このお店の他の事例を見る
データ
建物種別 戸建て
改修規模 改装・設備交換
築年数 築36年
工事面積 約11m2
施工期間 約110日
工事費 約313万円
地域 愛知県
家族構成 ご夫婦+お子様
テーマ バリアフリー、広々、その他
全国の「Panasonic リフォーム Club」のお店をさがす
リフォームポイント

仕事・家事・育児をこなす奥様に少しでもゆっくりできる時間を過ごして頂くため、家事ラクな設備を盛り込みました。
お話を頂く前に奥様にて下調べをして頂いており、メーカーはPanasonicに決まりました。
Panasonicならではの最新機能ラクするテクノロジーを多く盛り込んだ設備で快適度が向上しました。
パントリーにニッチ収納を設け、小物類もスッキリと収納が出来るようにしました。

お客様の声
窓の取替や断熱を入れてもらったおかげで、工事前と比べはるかに部屋が暖かくなりました!
冬だけど昼間は暖房要らずで快適です。
水廻り設備も使いやすくて大満足です。
担当者の声
大矢浩司

奥様と内装や設備について打合せをさせて頂く際、理想をしっかり伝えて頂けたのでとてもプランニングがしやすかったです。落ちついた雰囲気の内装にアクセントとしてボルドーのキッチンをご提案させて頂いた際も、イメージコンセプトをお伝えすると快くご採用頂き嬉しくなったのを覚えています。
ビフォーアフター
ビフォー

アフター

Panasonic MRを採用。お掃除がしやすく、浴槽がまたぎやすくなりました。冬場の寒さ対策に、壁面浴室暖房を設置しました。・酸素美泡湯 全身を微発泡が包み身体のポカポカが長続き。 お肌もすべすべになります。入浴剤より経済的です! 入浴中の息苦しさも無いので長湯の方にもおすすめです。

ビフォー

家族で使うには小さめな洗面化粧台

アフター

Panasonicウツクシーズを採用。上部からの吐水なのでお掃除もしやすく、キレイが長続き。ミラーキャビネットへの収納で小物類もスッキリ!

ビフォー

入口に框がある、昔の造りをしたトイレ

アフター

PanasonicアラウーノS2お掃除しやすく汚さないを追求した
・ひとふき形状
・スゴピカ素材
・激落ちバブル
・スパイラル水流

ビフォー

アフター

サイドのカウンターは手摺り代わりにもなります。

ビフォー

アフター

パントリーにニッチ収納を設け、小物類もスッキリと収納出来るようにしました。

ビフォー

アフター

施工店情報
パナソニックリフォームクラブ
矢野建設株式会社
(旧:リファインみなと)

〒455-0831
住所:愛知県名古屋市港区十一屋3丁目63番地
電話:052-384-2800 FAX:052-398-8451

■運営会社名 矢野建設株式会社
■建設業 国土交通大臣許可(特-5)第20106号
■建築士事務所 一級建築士事務所:愛知県知事登録(い-5)第4001号

このお店の情報・事例を見る
矢野建設株式会社(旧:リファインみなと)のリフォーム事例一覧
このお店の他の事例を見る
ページの先頭へ