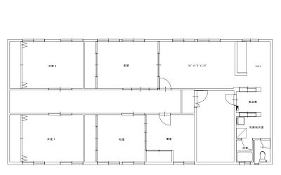
| 建物種別 | 戸建て |
|---|---|
| 改修規模 | 改装・設備交換 |
| 築年数 | 築36年 |
| 工事面積 | 約39m2 |
| 施工期間 | 約110日 |
| 工事費 | 約125万円 |
| 地域 | 愛知県 |
| 家族構成 | ご夫婦+お子様 |
| テーマ | バリアフリー、広々、その他 |
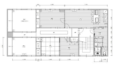
和室は畳を琉球風畳の銀白色×黄金色に。
襖からPanasonic VERITIS建具に収納も変更しました。
廊下、和室、寝室、トイレ等各所の段差を解消。
お掃除も簡単に。
子供部屋は男の子用にクロスを貼り替えました。
フローリングを張り替え、造り付けのクローゼットも窓側から廊下側へと配置を変更。窓からの光が広がるようになり、お部屋が明るくなりました。
寝室は、フローリングを張り替え、造り付けのクローゼットも窓側から廊下側へと配置を変更。窓からの光が広がるようになり、お部屋が明るくなりました。


以前は昔ながらの和室でした。

和室は畳を琉球風畳の銀白色×黄金色に。
襖からPanasonic VERITIS建具に収納も変更しました。

廊下、和室、寝室、トイレ等各所の段差を解消。
お掃除も簡単に。

子供部屋は男の子用にクロスを貼り替えました。

フローリングを張り替え、造り付けのクローゼットも窓側から廊下側へと配置を変更。窓からの光が広がるようになり、お部屋が明るくなりました。
