| 建物種別 | 戸建て |
|---|---|
| 改修規模 | 全面リフォーム |
| 築年数 | 築50年 |
| 施工期間 | 約120日 |
| 地域 | 富山県 |
| テーマ | 二世帯、バリアフリー、介護、明るい部屋、団らんキッチン |
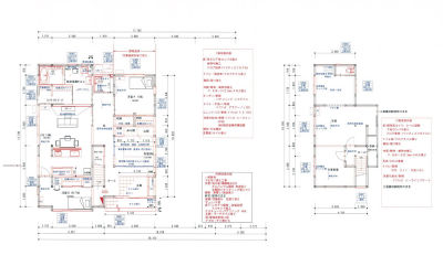
改装後は将来的に介護ができるくらいのスペースを確保しました。
将来的に介護のことも踏まえ出入口幅が大きい1.25坪の浴室へ。
洗面脱衣室には簡易冷暖房付き。入浴時のヒートショックの予防にも優れています。脱衣室には、
室内物干しスペースを設置。雨の日にも洗濯物が干せます。
・男性用と女性用と分かれてトイレを1つにしました
・使い勝手を考え、手摺を付けました
・ヒートショックの予防のため、脱衣場に暖房器具を設置しました。


既存のトイレは畳1帖のスペースで2種類の便器が設置してありました。洋式に至っては立つと壁にぶつかる距離でした。

改装後は将来的に介護ができるくらいのスペースを確保しました。


将来的に介護のことも踏まえ出入口幅が大きい1.25坪の浴室へ。

洗面脱衣室には簡易冷暖房付き。入浴時のヒートショックの予防にも優れています。脱衣室には、
室内物干しスペースを設置。雨の日にも洗濯物が干せます。
