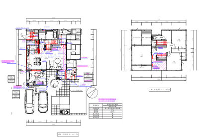
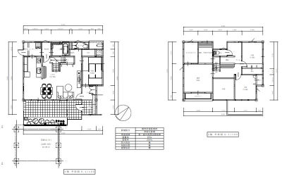
| 建物種別 | 戸建て | 
|---|---|
| 改修規模 | 増改築 | 
| 築年数 | 築10年 | 
| 工事面積 | 約10m2 | 
| 施工期間 | 約120日 | 
| 工事費 | 約300万円 | 
| 地域 | 富山県 | 
| 家族構成 | ご夫婦+子供2人 | 
| テーマ | 自然素材、ペット、吹き抜け、その他 | 
増築部の天井は勾配天井とし、空間の広がりを考慮しました。また、米杉を張り暖かな雰囲気にしました。
仕事にも活用できる書斎にしました。車から直接入ることもありますので、玄関収納を採用しました。


                                                
増築部の天井は勾配天井とし、空間の広がりを考慮しました。また、米杉を張り暖かな雰囲気にしました。
趣味とプライベートの部屋が欲しい。ペットの部屋作りたい。

趣味とプライベートの部屋を増築。吹抜けがあったがその部分にペットの部屋を作り、1階の冷暖房の効率を上げました。