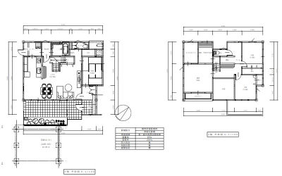
| 建物種別 | 戸建て |
|---|---|
| 改修規模 | 増改築 |
| 築年数 | 築10年 |
| 工事面積 | 約5m2 |
| 施工期間 | 約120日 |
| 工事費 | 約120万円 |
| 地域 | 富山県 |
| 家族構成 | ご夫婦+子供2人 |
| テーマ | 自然素材、ペット、吹き抜け、その他 |
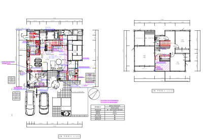
愛猫家のご家族の強いご要望で特別室をつくりました。一方で冷暖房の効率が良くなりました。
吹き抜け部分を部屋に改修しました。



愛猫家のご家族の強いご要望で特別室をつくりました。一方で冷暖房の効率が良くなりました。
趣味とプライベートの部屋が欲しい。ペットの部屋作りたい。

趣味とプライベートの部屋を増築。吹抜けがあったがその部分にペットの部屋を作り、1階の冷暖房の効率を上げました。