| 建物種別 | 戸建て |
|---|---|
| 改修規模 | 増改築 |
| 築年数 | 築10年 |
| 総工事面積 | 約85m2 |
| 施工期間 | 約120日 |
| 総工事費 | 約1440万円 |
| 地域 | 富山県 |
| 家族構成 | ご夫婦+子供2人 |
| テーマ | 自然素材、ペット、吹き抜け、その他 |
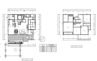
コロナ禍でテレワークのことを考えて、キッチン横にデスクワークやお子様の勉強が見れるようにデスクを併設しました。ウォールナットの無垢材の床をメインに壁、天井はスッキリとさせました。
階段は、踏板をリフォーム用の上貼りの商品を使用し色を統一しました。
増築部の天井は勾配天井とし、空間の広がりを考慮しました。また、米杉を張り暖かな雰囲気にしました。
愛猫家のご家族の強いご要望で特別室をつくりました。一方で冷暖房の効率が良くなりました。
スッキリと綺麗な玄関に生まれ変わりました。
ポイント/ネコちゃんの部屋が欲しい・趣味とプライベートの部屋が欲しい(増築)・使いやすく収納量をUPさせたキッチンスペースが欲しい。・無垢材のフロアー・シンプルで本物を使った心地よい空間づくり。



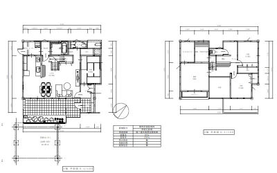
コロナ禍でテレワークのことを考えて、キッチン横にデスクワークやお子様の勉強が見れるようにデスクを併設しました。ウォールナットの無垢材の床をメインに壁、天井はスッキリとさせました。

階段は、踏板をリフォーム用の上貼りの商品を使用し色を統一しました。

増築部の天井は勾配天井とし、空間の広がりを考慮しました。また、米杉を張り暖かな雰囲気にしました。

愛猫家のご家族の強いご要望で特別室をつくりました。一方で冷暖房の効率が良くなりました。
玄関収納から溢れた靴やお掃除用品でゴチャゴチャ

スッキリと綺麗な玄関に生まれ変わりました。
趣味とプライベートの部屋が欲しい。ペットの部屋作りたい。

趣味とプライベートの部屋を増築。吹抜けがあったがその部分にペットの部屋を作り、1階の冷暖房の効率を上げました。