| 建物種別 | 戸建て |
|---|---|
| 改修規模 | 全面リフォーム |
| 築年数 | 築39年 |
| 工事面積 | 約16m2 |
| 施工期間 | 約65日 |
| 工事費 | 約100万円 |
| 地域 | 愛知県 |
| 家族構成 | 夫婦+ご両親+お子様 |
| テーマ | 二世帯、バリアフリー、明るい部屋、広々 |
天井までの大容量の玄関収納を造作しました。家族全員分の靴はもちろん、集めたキャンプグッズもしっかり納まりました。
窓は塞がない様に設計し換気も出来、置台としても活用できるようにしました。
分電盤もこの中に収められており、スッキリしたデザインの玄関となりました。
ご家族の人数が多く玄関収納のスペースが足りませんでした。
天井までの大容量収納を造作し、家族全員分の靴がスッキリ収納出来るようになりました。
また、集めたキャンプ道具もしっかり納まりました。
窓を塞がない様に設計し、置台としても活用できるようにしました。上部の分電盤も中に収納し、
スッキリしたデザインの玄関となりました。


以前は玄関収納スペースが少なく、家族全員分の靴の収納が難しい状態でした。

天井までの大容量の玄関収納を造作しました。家族全員分の靴はもちろん、集めたキャンプグッズもしっかり納まりました。
窓は塞がない様に設計し換気も出来、置台としても活用できるようにしました。分電盤もこの中に収められており、スッキリしたデザインの玄関となりました。
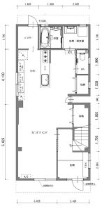
北側に面している洋間は荷物で埋まってしまい生活空間が狭まっていました。
お風呂は子供と一緒に入るにはちょっと手狭なサイズ感で、トイレは階段下のスペースにある為窮屈でした。

間取りを大幅変更しました。
荷物で埋まっていた洋室箇所に浴室・洗面脱衣室を配置し、水廻りスペースを広く確保しました。
キッチンはせっかく工事するなら眺めを変えたいと、若奥様のご希望によりプラン提案を繰り返し、ご納得頂ける間取りにたどり着きました。