| 建物種別 | 戸建て |
|---|---|
| 改修規模 | 全面リフォーム |
| 築年数 | 築39年 |
| 工事面積 | 約8m2 |
| 施工期間 | 約65日 |
| 工事費 | 約225万円 |
| 地域 | 愛知県 |
| 家族構成 | 夫婦+ご両親+お子様 |
| テーマ | 二世帯、バリアフリー、明るい部屋、広々 |
間取りを変更したことで浴室に新たに大きな窓を設置し、外から光が入る明るい浴室になりました。
洗面台をフロートタイプに。コンパクトスマートに収納♪
デザイン&水撥ね対策にスマートモザイクシートを貼りました。
アクセントにボタニカル柄クロスを貼り、華やかな空間になりました。
間取りを変更し、窓換気が取れるようになりました。
広くなって、背面に収納が確保できました。
「水廻りがだいぶ古くなってきた。」とのことで、バスルーム・洗面・トイレを入れ替えました。
間取りを変更したことで浴室に新たに窓を設置し、外から光が入る明るい浴室になりました。
洗面台をフロートタイプに。コンパクトスマートに収納♪
デザイン&水撥ね対策にスマートモザイクシートを貼りました。
アクセントにボタニカル柄クロスを貼り、華やかな空間になりました。


以前は寒さを感じる浴室でした。また、子供と一緒に入るにはちょっと手狭なサイズ感でした。

間取りを変更したことで浴室に新たに大きな窓を設置し、外から光が入る明るい浴室になりました。
以前は、ランドリー横で狭さを感じる洗面空間でした。

洗面台をフロートタイプに。コンパクトスマートに収納♪
デザイン&水撥ね対策にスマートモザイクシートを貼りました。
以前はタイル壁の寒さを感じるトイレでした。
また、階段下のスペースにある為窮屈でした。

アクセントにボタニカル柄クロスを貼り、華やかな空間になりました。

間取りを変更し、窓換気が取れるようになりました。
広くなって、背面に収納が確保できました。
北側に面している洋間は荷物で埋まってしまい生活空間が狭まっていました。
お風呂は子供と一緒に入るにはちょっと手狭なサイズ感で、トイレは階段下のスペースにある為窮屈でした。

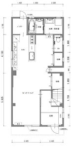
間取りを大幅変更しました。
荷物で埋まっていた洋室箇所に浴室・洗面脱衣室を配置し、水廻りスペースを広く確保しました。
キッチンはせっかく工事するなら眺めを変えたいと、若奥様のご希望によりプラン提案を繰り返し、ご納得頂ける間取りにたどり着きました。