| 建物種別 | 戸建て |
|---|---|
| 改修規模 | 全面リフォーム |
| 築年数 | 築39年 |
| 工事面積 | 約42m2 |
| 施工期間 | 約65日 |
| 工事費 | 約325万円 |
| 地域 | 愛知県 |
| 家族構成 | 夫婦+ご両親+お子様 |
| テーマ | 二世帯、バリアフリー、明るい部屋、広々 |
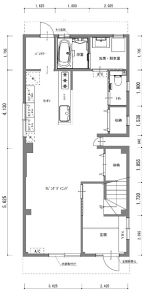
縦方向のⅠ型へ変更しました。
移動もスムーズになり、新鮮な気持ちで家事を行えるようにしました。
物置部屋となっていた洋室と廊下を無くし広々としたリビングダイニングに。大容量の壁面クローゼットを設置。見せる収納でスッキリ&オシャレ感がUPしました。
キッチン奥にシンプルな造りのパントリーを設けました。
サッシ部分を塞がないような設計にしました。換気もバッチリです。
以前はL字に区切られたキッチンでしたが、縦方向のⅠ型へ変更しました。
移動もスムーズになり、新鮮な気持ちで家事を行えるようにしました。
物置部屋となっていた洋室と廊下を無くし、広々としたLDKとなりました。
キッチン奥にシンプルな造りのパントリーを設け、大容量の壁面クローゼットを設置。見せる収納でスッキリ&オシャレ感がUPしました。
LDK南側にある掃き出し窓をペアガラスの窓へと取り替えました。


以前はL字に区切られたキッチンでした。
長年使っていたL字のキッチンから見る風景にマンネリ化をしていたのでせっかく工事するなら向きを変えたいと、若奥様のご希望によりプラン提案を繰り返し、ご納得頂ける間取りにたどり着きました。

縦方向のⅠ型へ変更しました。
移動もスムーズになり、新鮮な気持ちで家事を行えるようにしました。

物置部屋となっていた洋室と廊下を無くし広々としたリビングダイニングに。大容量の壁面クローゼットを設置。見せる収納でスッキリ&オシャレ感がUPしました。

キッチン奥にシンプルな造りのパントリーを設けました。

サッシ部分を塞がないような設計にしました。換気もバッチリです。
北側に面している洋間は荷物で埋まってしまい生活空間が狭まっていました。
お風呂は子供と一緒に入るにはちょっと手狭なサイズ感で、トイレは階段下のスペースにある為窮屈でした。

間取りを大幅変更しました。
荷物で埋まっていた洋室箇所に浴室・洗面脱衣室を配置し、水廻りスペースを広く確保しました。
キッチンはせっかく工事するなら眺めを変えたいと、若奥様のご希望によりプラン提案を繰り返し、ご納得頂ける間取りにたどり着きました。