キッチンの上に余計なものを一切置かずに収納できるキッチン。スリムセンサー水栓なのでいちいち水を止めなくていいのがうれしい。IHは対面マルチワイド、「料理のスムーズさは使ってさらに実感しました」と奥様。
世界的建築家マイケル・グレイブスが1989年に建てた築31年のデザイナーズマンションを中古購入しリノベーション。
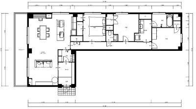
当初は水回りと壁のみでリフォームを検討していましたが、担当者と話しているうちに夢が膨らみ間取り変更を兼ねたリノベーションとなりました。
キッチンを選ぶ際、担当者とパナソニックのショウルームに展示してあったキッチンに一目惚れ。妥協を一切しなかったことで120%満足のいく仕上がりとなりました。


使いづらいL型キッチンは取替が絶対条件でした。

キッチンの上に余計なものを一切置かずに収納できるキッチン。スリムセンサー水栓なのでいちいち水を止めなくていいのがうれしい。IHは対面マルチワイド、「料理のスムーズさは使ってさらに実感しました」と奥様。
