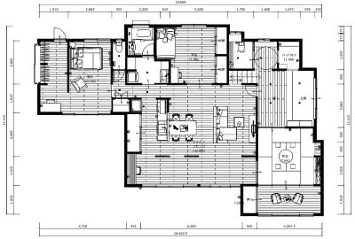
| 建物種別 | 戸建て |
|---|---|
| 改修規模 | 増改築 |
| 築年数 | 築55年 |
| 施工期間 | 約70日 |
| 地域 | 福岡県 |
| 家族構成 | 1世帯3人 |
| テーマ | 古民家再生、バリアフリー、オール電化 |
上品な陶器の手洗いにブラックの水栓をしつらえ、洗練されたトイレ空間。今後車いすでも使用できるように、トイレ前には車いすの回転に十分なスペースを設け、開口幅も確保。手摺を取付できるように壁には補強材を入れています。
浴槽はコンパクトで、ためたお湯もすぐに冷めてしまっていた以前のお風呂。増築で大きさを広げ、足を延ばしてゆったり浸かることができる広さになりました。最新のユニットバスで室内も浴槽も保温ばっちりです



上品な陶器の手洗いにブラックの水栓をしつらえ、洗練されたトイレ空間。今後車いすでも使用できるように、トイレ前には車いすの回転に十分なスペースを設け、開口幅も確保。手摺を取付できるように壁には補強材を入れています。
浴槽はコンパクトで、ためたお湯もすぐに冷めてしまっていた以前のお風呂。

増築で大きさを広げ、足を延ばしてゆったり浸かることができる広さになりました。最新のユニットバスで室内も浴槽も保温ばっちりです
