| 建物種別 | マンション |
|---|---|
| 改修規模 | 全面リフォーム |
| 築年数 | 築30年 |
| 施工期間 | 約51日 |
| 地域 | 愛知県 |
| 家族構成 | 夫婦+子供2人 |
| テーマ | 広々 |
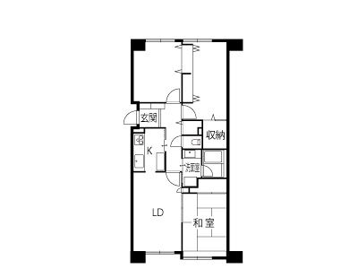
お手持ちのタンスも収め、たっぷり収納できるウォークインクローゼットに。
O様はマンションをご両親から受け継がれましたが、日用品や2人のお嬢様のおもちゃが十分に収納できず、いつも散らかっている感じだったとのこと。また、間取りも使いづらかったため、リフォームを決心されました。
キッチンには、リビングから見えない奥まった場所にパントリーを新設。玄関を入ってすぐのウォークインクローゼットもすっきり片付いた暮らしに貢献しています。玄関には、見せる収納ともいえるシューズインクローゼットを設置。クロスと木製棚の配色が良く、印象的なデザインになりました。リビングと洋室は明るいベランダ側に配置し、奥様ご希望の室内窓を。キッチンのヴィンテージメタル柄や各スペースのクロスも奥様が十分に考えてカラーを選択され、センス良く統一されています。
