PanasonicリフォームClub
TOP TOPリフォーム事例検索検索結果詳細

愛知県 K様邸

動線をスムーズにして快適生活

お店の情報・お問い合わせ  このお店の他の事例を見る
データ
建物種別 戸建て
改修規模 全面リフォーム
築年数 築30年
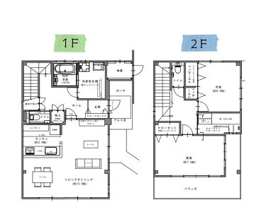
工事面積 約21m2
施工期間 約100日
工事費 約300万円
地域 愛知県
家族構成 大人4人+子供1人
テーマ 団らんキッチン、明るい部屋、オール電化、その他
全国の「Panasonic リフォーム Club」のお店をさがす
リフォームポイント

以前は離れだった為、アプローチがあるのみで、玄関スペースはありませんでした。
生活スペースの中心に玄関を配置し、各部屋への移動をスムーズにしました。
ミラー付きのシューズクロークを設置。お出かけ前のチェックもバッチリです。
階段は急勾配で上り下りが大変でしたが、段数を増やし幅を少し広げて無理なく登れるようになりました。
また、手摺りを設置し、安全面にも配慮しました。
壁を白くしたことで、窓からの光の反射を有効活用。とても明るくなりました。

お客様の声
階段を造り直して頂いたので2階まで楽に行けるようになりました。
水廻りもショールームでじっくり選んだのでとても使いやすいです。
これまでの離れのイメージが一新されて明るいきれいな空間に生まれ変わって驚きました。
担当者の声
大矢浩司

■親・子世帯の程良い距離感に配慮する為、母屋との通路を塞ぎ、玄関を新たに設けました。
■離れとして使用していたのでキッチン・バス・洗面を新しく設置しました。
■オール電化希望の為、IH ・.エコキュートを導入しました。
  親・子世帯の電気メーターを分け、使用料が分かるようにしました。
■2階のみにあった和式のトイレを1階・2階共に洋式に入替えました。
■和室メインでしたが、全ての床をフローリングにしました。
■壁はスタイリッシュにイメージを一新しました。
■照明はシャンデリア、和風ペンダントからダウンライト・ペンダントライトへ。
■階段をやり替え、お子様の安全に配慮し手摺を設置しました。
■娘さん世帯の車が増えるため、庭に駐車スペースを造り、カーポートを
  新設しました。
ビフォーアフター
ビフォー

階段が急勾配で上り下りが一苦労でした。

アフター

階段数を増やし幅を広げ津無理なく登れるようになりました。
また、手摺りを付けて安全面にも配慮しました。
壁を白くしたことで、窓からの光の反射を有効利用しました。

ビフォー

アフター

玄関にはミラー付きのシューズクロークを設置しました。
VERITISで色柄を統一した美しい玄関ホールになりました。

ビフォー

アフター

このリフォームで採用したパナソニック商品
施工店情報
パナソニックリフォームクラブ
矢野建設株式会社
(旧:リファインみなと)

〒455-0831
住所:愛知県名古屋市港区十一屋3丁目63番地
電話:052-384-2800 FAX:052-398-8451

■運営会社名 矢野建設株式会社
■建設業 国土交通大臣許可(特-5)第20106号
■建築士事務所 一級建築士事務所:愛知県知事登録(い-5)第4001号

このお店の情報・事例を見る
矢野建設株式会社(旧:リファインみなと)のリフォーム事例一覧
このお店の他の事例を見る
ページの先頭へ