| 建物種別 | 戸建て |
|---|---|
| 改修規模 | 全面リフォーム |
| 築年数 | 築30年 |
| 総工事面積 | 約122m2 |
| 施工期間 | 約100日 |
| 総工事費 | 約1830万円 |
| 地域 | 愛知県 |
| 家族構成 | 大人4人+子供1人 |
| テーマ | 団らんキッチン、明るい部屋、オール電化、その他 |
こもりがちなキッチンスペースは使い勝手の良いラクシーナのペニンシュラ型キッチンを採用。家族の様子が見渡せ、会話が弾みます。お料理しながらお庭が見渡せる開放的な贅沢空間に。
窓は防犯ガラスを採用しました。
L型のカウンターはお子様のお手伝いもラクラク。
オール電化ご希望との事でしたのでIHクッキングヒーターを導入しました。
・エコナビ光火力センサー
・スキマレスシンク
・クッキングコンセント
・ほっとくリーンサイドフード
カップボードのソフトダウンウォールユニットは奥様に嬉しい楽々収納です。
入口脇の壁は表面に凹凸のあるエコカラットを貼り、照明を当てて更に高級感を演出しています。
エコカラット壁は湿気のジメジメも生活臭も取り除いてくれます。
天井までの大きなドアは白い部屋の中でひと際存在感を放ちます。
大きな窓からの採光で昼は明るく活気のあるお部屋、夜はダウンライトで昼とは違う表情を演出し、大人の落ち着いた空間を創り出します。
1・2階ともに洋式のトイレを設置しました。
新型アラウーノを採用しました。
アラウーノ手洗いカウンター
タンクレス/背面収納
・有機ガラス新素材/新スパイラル洗浄/激落ちバブル/トリプル汚れガード/スキマレス設計
・LED間接照明
・ひと・室温・着座センサー
・ナノイー
1・2階ともに洋式のトイレを設置しました。
便器奥に隙間が無いのでお掃除もラクラクです。
背面手洗器付き
オフローラを採用しました。
ホワイト×ベージュの美しい浴室
・酸素美泡湯
・フラットラインLED照明
・カビシャット暖房換気乾燥機
・エステケアシャワー
・ライトタッチ水栓
エコキュートを設置
ウツクシーズを採用しました。
チェリー柄
・引出しタイプキャビネット
・シャワーヘッド引出ありタイプ
・洗面ボールカウンタータイプ
・ささっとキレイヘヤキャッチャー
・ツインライン三面鏡
・くもりシャットミラー
ホシ姫サマ設置で部屋干しがスマートに。
階段数を増やし幅を広げ津無理なく登れるようになりました。
また、手摺りを付けて安全面にも配慮しました。
壁を白くしたことで、窓からの光の反射を有効利用しました。
玄関にはミラー付きのシューズクロークを設置しました。
VERITISで色柄を統一した美しい玄関ホールになりました。
寝室は二面の大きな窓からたっぷりと光が差し込み、毎朝を清々しい気持ちで迎えられます。
二重サッシなので夏は涼しく、冬は暖か。遮音効果もあり、快適な寝室です。
アクセントの壁紙はシックなブラックで落ち着いた印象の広々空間となりました。
大容量のクローゼットを設置しました。
白を基調としたウォークインクローゼットを新設しました。
使い勝手を考え、パイプハンガーや棚を配置しました。
玄関・アプローチを新設しました。
お車が増える為、庭に駐車スペースを造り、カーポートを新設しました。
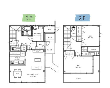
ご両親からのご相談を受け、以前より使用していた2階建ての離れを、娘さんご夫婦の新居へとリフォームさせて頂きました。
昔ながらの二間を繋げて活用できる広い和室、レトロな照明器具、和式のトイレ等、昭和の古めかしさを一掃し、若い家族のライフスタイルに合った間取りへ造り替えて欲しいとの事でした。
また、離れの為、今まで無かったキッチン・バス・洗面を新設する必要がありました。
オール電化を希望されており、親・子世帯それぞれの電気使用量・水道使用量が分かる様にメーターを分けて欲しいとの事でした。
階段が急勾配で上り下りが一苦労なので、階段も作り直して欲しい。とのご依頼を頂きました。


以前は重厚感のある昔ながらの二間を繋がる区切られた和室でした。

こもりがちなキッチンスペースは使い勝手の良いラクシーナのペニンシュラ型キッチンを採用。家族の様子が見渡せ、会話が弾みます。お料理しながらお庭が見渡せる開放的な贅沢空間に。
窓は防犯ガラスを採用しました。

L型のカウンターはお子様のお手伝いもラクラク。
オール電化ご希望との事でしたのでIHクッキングヒーターを導入しました。
・エコナビ光火力センサー
・スキマレスシンク
・クッキングコンセント
・ほっとくリーンサイドフード

カップボードのソフトダウンウォールユニットは奥様に嬉しい楽々収納です。

入口脇の壁は表面に凹凸のあるエコカラットを貼り、照明を当てて更に高級感を演出しています。
エコカラット壁は湿気のジメジメも生活臭も取り除いてくれます。
天井までの大きなドアは白い部屋の中でひと際存在感を放ちます。

大きな窓からの採光で昼は明るく活気のあるお部屋、夜はダウンライトで昼とは違う表情を演出し、大人の落ち着いた空間を創り出します。
