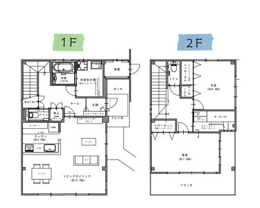
| 建物種別 | 戸建て |
|---|---|
| 改修規模 | 全面リフォーム |
| 築年数 | 築30年 |
| 工事面積 | 約12m2 |
| 施工期間 | 約100日 |
| 工事費 | 約450万円 |
| 地域 | 愛知県 |
| 家族構成 | 大人4人+子供1人 |
| テーマ | 団らんキッチン、明るい部屋、オール電化、その他 |
1・2階ともに洋式のトイレを設置しました。
新型アラウーノを採用しました。
アラウーノ手洗いカウンター
タンクレス/背面収納
・有機ガラス新素材/新スパイラル洗浄/激落ちバブル/トリプル汚れガード/スキマレス設計
・LED間接照明
・ひと・室温・着座センサー
・ナノイー
1・2階ともに洋式のトイレを設置しました。
便器奥に隙間が無いのでお掃除もラクラクです。
背面手洗器付き
オフローラを採用しました。
ホワイト×ベージュの美しい浴室
・酸素美泡湯
・フラットラインLED照明
・カビシャット暖房換気乾燥機
・エステケアシャワー
・ライトタッチ水栓
エコキュートを設置
ウツクシーズを採用しました。
チェリー柄
・引出しタイプキャビネット
・シャワーヘッド引出ありタイプ
・洗面ボールカウンタータイプ
・ささっとキレイヘヤキャッチャー
・ツインライン三面鏡
・くもりシャットミラー
ホシ姫サマ設置で部屋干しがスマートに。
離れの為、お風呂も洗面もありませんでしたので新設しました。
トイレは2階のみでしたが、1階・2階に設置。
和式からの入替でとても美しくなりました。


以前はトイレは2階のみにあり、和式でした。

1・2階ともに洋式のトイレを設置しました。
新型アラウーノを採用しました。
アラウーノ手洗いカウンター
タンクレス/背面収納
・有機ガラス新素材/新スパイラル洗浄/激落ちバブル/トリプル汚れガード/スキマレス設計
・LED間接照明
・ひと・室温・着座センサー
・ナノイー

1・2階ともに洋式のトイレを設置しました。
便器奥に隙間が無いのでお掃除もラクラクです。
背面手洗器付き

オフローラを採用しました。
ホワイト×ベージュの美しい浴室
・酸素美泡湯
・フラットラインLED照明
・カビシャット暖房換気乾燥機
・エステケアシャワー
・ライトタッチ水栓
エコキュートを設置

ウツクシーズを採用しました。
チェリー柄
・引出しタイプキャビネット
・シャワーヘッド引出ありタイプ
・洗面ボールカウンタータイプ
・ささっとキレイヘヤキャッチャー
・ツインライン三面鏡
・くもりシャットミラー
ホシ姫サマ設置で部屋干しがスマートに。
