PanasonicリフォームClub
TOP TOPリフォーム事例検索検索結果詳細

愛知県 S様邸

こだわり派の本格和風な佇まい

お店の情報・お問い合わせ  このお店の他の事例を見る
データ
建物種別 戸建て
改修規模 全面リフォーム
築年数 築60年
施工期間 約120日
地域 愛知県
家族構成 3名
テーマ 古民家再生、平屋建て、明るい部屋、広々
全国の「Panasonic リフォーム Club」のお店をさがす
リフォームポイント

白と黒のコントラストが映える外観 サイディングを貼り玄関を変えたら住まいが見ちがえるほどに変わりました 玄関引戸は3枚連動引戸で大きく開き、毎日の出入りをゆったり快適に

お客様の声
リフォームして住み始めたらとっても動線が楽です 主婦としては毎日が楽しいです 家が新しいってとってもいいですね これからの老後の生活が楽しく暮らせそうです
担当者の声
後藤

当初初めて社外施設イベントに隣の施設と間違えて来場されたお客様で、その時すでに3社相見積もりを取っていました 金額勝負は覚悟していましたが、要望をお聞きして同年代のお客様なのでこれはプランで負けたくないと思い打合せを重ねお客様から「これならば」とお墨付きを頂きました 実際に住まわれてから突然お褒めのメールを頂いた時はビックリしましたがやりがいのある現場でしたので嬉しく思います
ビフォーアフター
ビフォー

長年の月日が流れ、あちこち老朽化が進みなんとかしたい

アフター

家の第一印象は外観 意匠性を高めた外装リフォーム 壁を黒にして重厚な佇まいに

ビフォー

開け閉めがしにくくなった玄関引き戸 今度は開口が広くとれるものにしたい

アフター

同じ家とは思えないくらい雰囲気が変わりました 玄関まわりを少しこだわり鉄平石を壁にはり上質感がでました

ビフォー

裏口がなく、ぐるっと回って洗濯を干しにいっていた スムーズに取り込みなど出来るようにしたい

アフター

屋根付ウッドデッキのおかげでお洗濯物も安心して干せます 部屋からの段差も少ないので出入りしやすいです

ビフォー

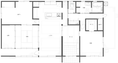
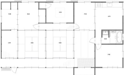
昔ながらの間取り 2間続きの和室や建具で仕切られているので壁面が少なくすきま風など冬は寒い 収納できる所がないので物が片付けれるスペースが欲しい

アフター

水廻りの位置をガラッと変え、LDKを住まいの中心に配置し流れるような家事動線にしました どの部屋に行くにもスムーズに行けます冬場の寒さも床暖房で暖か 

施工店情報
パナソニックリフォームクラブ
株式会社ナイスホーム
(旧:リファイン安城)

〒446-0074
住所:愛知県安城市井杭山町高見3番地1
電話:0566-77-5871 FAX:0566-77-5832

■運営会社名 株式会社ナイスホーム
■建設業 愛知県知事許可(特-4)第57195号
■建築士事務所 一級建築士事務所:愛知県知事登録(い-5)第12668号

このお店の情報・事例を見る
株式会社ナイスホーム(旧:リファイン安城)のリフォーム事例一覧
このお店の他の事例を見る
ページの先頭へ