| 建物種別 | 戸建て |
|---|---|
| 改修規模 | 全面リフォーム |
| 築年数 | 築60年 |
| 施工期間 | 約120日 |
| 地域 | 愛知県 |
| 家族構成 | 3名 |
| テーマ | 古民家再生、平屋建て、明るい部屋、広々 |
サイズも大きくなり使いやすくなりました
オートルーバーの暖房換気乾燥機付のお風呂 室内干しもできお掃除もしやすいお風呂になりました
洗濯機横には洗剤やストック品が置けるスペースを配置
浴室・洗面は設備を入れ替え、洗面室は収納スペースを設けました。収納棚は使い勝手を熟慮して可動棚を設置しています

窮屈だった洗面スペース

サイズも大きくなり使いやすくなりました
便利機能の付いたお風呂にしたい

オートルーバーの暖房換気乾燥機付のお風呂 室内干しもできお掃除もしやすいお風呂になりました
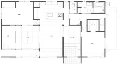
昔ながらの間取り 2間続きの和室や建具で仕切られているので壁面が少なくすきま風など冬は寒い 収納できる所がないので物が片付けれるスペースが欲しい

水廻りの位置をガラッと変え、LDKを住まいの中心に配置し流れるような家事動線にしました どの部屋に行くにもスムーズに行けます冬場の寒さも床暖房で暖か