| 建物種別 | 戸建て |
|---|---|
| 改修規模 | 全面リフォーム |
| 築年数 | 築60年 |
| 施工期間 | 約120日 |
| 地域 | 愛知県 |
| 家族構成 | 3名 |
| テーマ | 古民家再生、平屋建て、明るい部屋、広々 |
玄関が広く見えるように玄関収納はフロアのみ
3枚連動引戸にして出入りがしやすくなりました 光も入り明るいです
壁は上下で貼り分け 水平ラインがキレイです
玄関入って正面に見える引戸 他とはあえて色とデザインを変えました
廊下にクローゼット収納 生活用品や小物など整理できます
以前は薄暗く寒かった玄関ですが、白い壁に木目調の腰壁、鉄平石のバランスが一段と現代的な和風を捉え、木の温かさがお客様をお出迎えします 元々あった衝立も新しい玄関ホールの雰囲気に馴染んでます

玄関が薄暗く寒い

玄関が広く見えるように玄関収納はフロアのみ
引戸の立てつけの悪さを解消したい

3枚連動引戸にして出入りがしやすくなりました 光も入り明るいです
昔ながらの間取り 2間続きの和室や建具で仕切られているので壁面が少なくすきま風など冬は寒い 収納できる所がないので物が片付けれるスペースが欲しい

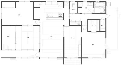
水廻りの位置をガラッと変え、LDKを住まいの中心に配置し流れるような家事動線にしました どの部屋に行くにもスムーズに行けます冬場の寒さも床暖房で暖か