| 建物種別 | 戸建て |
|---|---|
| 改修規模 | 全面リフォーム |
| 築年数 | 築60年 |
| 総工事面積 | 約133.9m2 |
| 施工期間 | 約120日 |
| 総工事費 | 約1990万円 |
| 地域 | 愛知県 |
| 家族構成 | 3名 |
| テーマ | 古民家再生、平屋建て、明るい部屋、広々 |
家の第一印象は外観 意匠性を高めた外装リフォーム 壁を黒にして重厚な佇まいに
同じ家とは思えないくらい雰囲気が変わりました 玄関まわりを少しこだわり鉄平石を壁にはり上質感がでました
屋根付ウッドデッキのおかげでお洗濯物も安心して干せます 部屋からの段差も少ないので出入りしやすいです
玄関が広く見えるように玄関収納はフロアのみ
3枚連動引戸にして出入りがしやすくなりました 光も入り明るいです
壁は上下で貼り分け 水平ラインがキレイです
玄関入って正面に見える引戸 他とはあえて色とデザインを変えました
廊下にクローゼット収納 生活用品や小物など整理できます
キッチンの場所を変え、広くLDKスペースがとれるように 対面キッチンにして手元が見えにくいようにしました
カップボードも使いやすいサイズに 常に使い分だけ収納
キッチンからリビングをみた様子
広いリビング 元々和室だった所をフローリングで使いやすく LDKとして1つの空間になることで広々とお使いいただけます 冬は床暖房で足元のあったか
テレビを置くところはエコカラットでアクセントを 窓から明るい光が入りずっと居たくなるリビングに
キッチン横にはカウンターを配置 家事の合間にPCなどで調べたりと便利なコーナー
サイズも大きくなり使いやすくなりました
オートルーバーの暖房換気乾燥機付のお風呂 室内干しもできお掃除もしやすいお風呂になりました
洗濯機横には洗剤やストック品が置けるスペースを配置
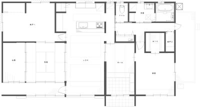
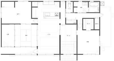
昔の面影を残しつつ現代スタイルにリノベーション 間取りはガラッと変えましたが和の雰囲気は残しつつ、LDKは使いやすいように対面キッチンに 家族でコミュニケーションがとれる洋スタイルになりました 家事動線もよく収納も適材適所に設け荷物の置き場にも困りません 設備も一新しお掃除もラクになりました これから老後を楽しむ住まいの完成です

長年の月日が流れ、あちこち老朽化が進みなんとかしたい

家の第一印象は外観 意匠性を高めた外装リフォーム 壁を黒にして重厚な佇まいに
開け閉めがしにくくなった玄関引き戸 今度は開口が広くとれるものにしたい

同じ家とは思えないくらい雰囲気が変わりました 玄関まわりを少しこだわり鉄平石を壁にはり上質感がでました
裏口がなく、ぐるっと回って洗濯を干しにいっていた スムーズに取り込みなど出来るようにしたい

屋根付ウッドデッキのおかげでお洗濯物も安心して干せます 部屋からの段差も少ないので出入りしやすいです
玄関が薄暗く寒い

玄関が広く見えるように玄関収納はフロアのみ
引戸の立てつけの悪さを解消したい

3枚連動引戸にして出入りがしやすくなりました 光も入り明るいです
昔ながらの間取り 2間続きの和室や建具で仕切られているので壁面が少なくすきま風など冬は寒い 収納できる所がないので物が片付けれるスペースが欲しい

水廻りの位置をガラッと変え、LDKを住まいの中心に配置し流れるような家事動線にしました どの部屋に行くにもスムーズに行けます冬場の寒さも床暖房で暖か