| 建物種別 | 戸建て |
|---|---|
| 改修規模 | 全面リフォーム |
| 築年数 | 築60年 |
| 施工期間 | 約120日 |
| 地域 | 愛知県 |
| 家族構成 | 3名 |
| テーマ | 古民家再生、平屋建て、明るい部屋、広々 |
家の第一印象は外観 意匠性を高めた外装リフォーム 壁を黒にして重厚な佇まいに
同じ家とは思えないくらい雰囲気が変わりました 玄関まわりを少しこだわり鉄平石を壁にはり上質感がでました
屋根付ウッドデッキのおかげでお洗濯物も安心して干せます 部屋からの段差も少ないので出入りしやすいです
白と黒のコントラストが映える外観 サイディングを貼り玄関を変えたら住まいが見ちがえるほどに変わりました 玄関引戸は3枚連動引戸で大きく開き、毎日の出入りをゆったり快適に

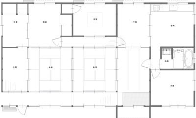
長年の月日が流れ、あちこち老朽化が進みなんとかしたい

家の第一印象は外観 意匠性を高めた外装リフォーム 壁を黒にして重厚な佇まいに
開け閉めがしにくくなった玄関引き戸 今度は開口が広くとれるものにしたい

同じ家とは思えないくらい雰囲気が変わりました 玄関まわりを少しこだわり鉄平石を壁にはり上質感がでました
裏口がなく、ぐるっと回って洗濯を干しにいっていた スムーズに取り込みなど出来るようにしたい

屋根付ウッドデッキのおかげでお洗濯物も安心して干せます 部屋からの段差も少ないので出入りしやすいです
昔ながらの間取り 2間続きの和室や建具で仕切られているので壁面が少なくすきま風など冬は寒い 収納できる所がないので物が片付けれるスペースが欲しい

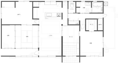
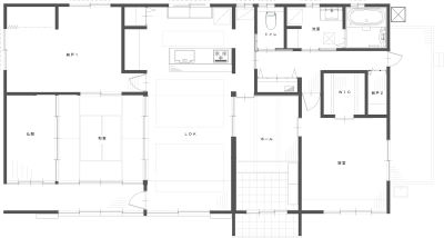
水廻りの位置をガラッと変え、LDKを住まいの中心に配置し流れるような家事動線にしました どの部屋に行くにもスムーズに行けます冬場の寒さも床暖房で暖か