| 建物種別 | 戸建て |
|---|---|
| 改修規模 | 全面リフォーム |
| 築年数 | 築60年 |
| 施工期間 | 約120日 |
| 地域 | 愛知県 |
| 家族構成 | 3名 |
| テーマ | 古民家再生、平屋建て、明るい部屋、広々 |
キッチンの場所を変え、広くLDKスペースがとれるように 対面キッチンにして手元が見えにくいようにしました
カップボードも使いやすいサイズに 常に使い分だけ収納
キッチンからリビングをみた様子
広いリビング 元々和室だった所をフローリングで使いやすく LDKとして1つの空間になることで広々とお使いいただけます 冬は床暖房で足元のあったか
テレビを置くところはエコカラットでアクセントを 窓から明るい光が入りずっと居たくなるリビングに
キッチン横にはカウンターを配置 家事の合間にPCなどで調べたりと便利なコーナー
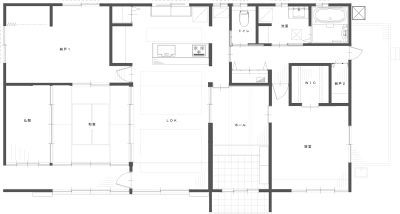
LDKは住まいの中心に移動 部屋をつなげワンフロアのLDKに生まれ変わりました 元々奥にあった壁付キッチンは対面式にしカップボードを設置し、普段よく使うものだけ置くことに どんどんたまっていく食器類はカッブボードに収まる量で整理することですっきり片付きました キッチンから廊下へ移動でき洗面や玄関へのアクセスがスムーズです

壁一面にキッチンと収納があり、キッチンまわりが丸見えが気になりなんとかしたい

キッチンの場所を変え、広くLDKスペースがとれるように 対面キッチンにして手元が見えにくいようにしました
普段使わない食器類などたくさんあり、これを機に整理したい

カップボードも使いやすいサイズに 常に使い分だけ収納
昔ながらの間取り 2間続きの和室や建具で仕切られているので壁面が少なくすきま風など冬は寒い 収納できる所がないので物が片付けれるスペースが欲しい

水廻りの位置をガラッと変え、LDKを住まいの中心に配置し流れるような家事動線にしました どの部屋に行くにもスムーズに行けます冬場の寒さも床暖房で暖か