| 建物種別 | マンション |
|---|---|
| 改修規模 | 改装・設備交換 |
| 築年数 | 築33年 |
| 工事面積 | 約19m2 |
| 施工期間 | 約12日 |
| 地域 | 和歌山県 |
| 家族構成 | 1世帯 親子2人 |
| テーマ | 団らんキッチン、明るい部屋、その他 |
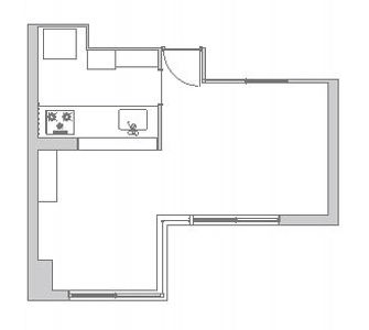
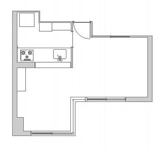
壁を撤去したことで、明るく広く感じられるようになりました。
床は防音床材に貼り替え、気になる生活音が響きにくくしました。
部屋の形に合わせて配置できるキュビオスで、柱と梁の間の空間を有効活用。
不足していた収納スペースの確保ができました。
柱と梁に囲まれた壁の空間を最大限に活かして、キュビオスを設置。
掃除機など大きなものも収納でき、さらに細かなものも収納できるようプランしました。
掃除が大変だったリビングダイニングの床は、マンションということも考慮して、防音床材に貼り替えました。


リビングダイニング側から見たキッチン。
壁によって、圧迫感や狭さを感じてしまう。
カーペットの床も汚れが気になる。

壁を撤去したことで、明るく広く感じられるようになりました。
床は防音床材に貼り替え、気になる生活音が響きにくくしました。
柱や梁で、家具をすっきり配置するのが難しい。
また、片付けがしづらい。

部屋の形に合わせて配置できるキュビオスで、柱と梁の間の空間を有効活用。
不足していた収納スペースの確保ができました。
