| 建物種別 | 戸建て |
|---|---|
| 改修規模 | 全面リフォーム |
| 築年数 | 築84年 |
| 施工期間 | 約165日 |
| 地域 | 岐阜県 |
| 家族構成 | 2世帯6人 夫婦+夫婦+子供2人 |
| テーマ | 団らんキッチン、古民家再生、二世帯、自然素材、吹き抜け、耐震、その他 |
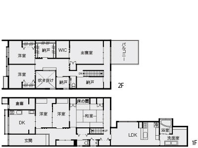
天井の高い吹き抜けは古民家ならでは。白漆喰が明るさを演出する気持ちのよい空間。
木地をいかした格子戸と黒漆喰の壁で街並みとの調和を図りました。
景観地域にあるN様邸。まちづくり協定にそって、外観は木地をいかした格子戸と黒漆喰の壁で街並みとの調和を図りました。和室が多く収納が少ないという悩みを解消するため、構造壁を増設し間取りを変更。約10畳の和室以外は収納のある洋室にし、ウォークインクローゼットも新たに設置して収納不足を解消。重厚感ある古民家の魅力を継承しつつ、近代的な空間の融合で、使いやすい住まいとなりました。
