PanasonicリフォームClub
TOP TOPリフォーム事例検索詳細

岐阜県 N様邸

伝統と時代を引き継ぐ
和洋融合の新しい古民家

お店の情報  このお店の他の事例を見る
データ
建物種別 戸建て
改修規模 全面リフォーム
築年数 築84年
総工事面積 約248m2
施工期間 約165日
総工事費 約3645万円
地域 岐阜県
家族構成 2世帯6人 夫婦+夫婦+子供2人
テーマ 団らんキッチン、古民家再生、二世帯、自然素材、吹き抜け、耐震、その他
全国の「Panasonic リフォーム Club」のお店をさがす
リフォームポイント

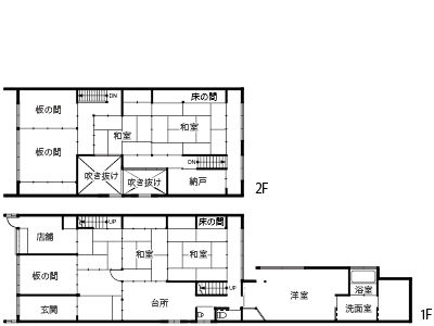
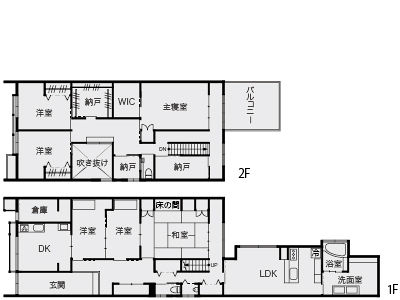
景観地域にあるN様邸。まちづくり協定にそって、外観は木地をいかした格子戸と黒漆喰の壁で街並みとの調和を図りました。和室が多く収納が少ないという悩みを解消するため、構造壁を増設し間取りを変更。約10畳の和室以外は収納のある洋室にし、ウォークインクローゼットも新たに設置して収納不足を解消。重厚感ある古民家の魅力を継承しつつ、近代的な空間の融合で、使いやすい住まいとなりました。

お客様の声
古民家らしい柱と美しい白漆喰が気に入っています。
担当者の声
亀山 立美

玄関の格子戸、吹き抜けからの光に映し出される重厚感など、古民家でしか出せない雰囲気を守りながら、断熱材や耐震壁を配置し、長く快適に暮らせる住まいを目指しました。
ビフォーアフター
ビフォー

アフター

ビフォー

アフター

このリフォームで採用したパナソニック商品
施工店情報
パナソニックリフォームクラブ
内藤建設株式会社
(旧:リファイン各務原)

〒504-0021
住所:岐阜県各務原市那加前洞新町4-193
電話:058-322-3031 FAX:058-322-3037

■運営会社名 内藤建設株式会社
■建設業 国土交通大臣許可(特-3)第471号
■建築士事務所 一級建築士事務所:岐阜県知事登録第6675号

このお店の情報・事例を見る
内藤建設株式会社(旧:リファイン各務原)のリフォーム事例一覧
このお店の他の事例を見る
ページの先頭へ