PanasonicリフォームClub
TOP TOPリフォーム事例検索詳細

石川県 K様邸

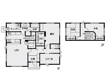
オール電化で安心LDK、
ピアノ室は防音完備

お店の情報・お問い合わせ  このお店の他の事例を見る
データ
建物種別 戸建て
改修規模 全面リフォーム
築年数 築30年
施工期間 約150日
地域 石川県
家族構成 夫婦
テーマ 団らんキッチン、オール電化、その他
全国の「Panasonic リフォーム Club」のお店をさがす
リフォームポイント

オール電化で安心。床暖房を設置し、高性能断熱材を用いて、あたたかいリビングを実現。
ピアノ練習が気兼ねなくできるように、遮音性の高い鉛シートを張り、吸音板を施工し、練習が気兼ねなくできる防音室を新設しました。

お客様の声
忙しい息子夫婦が暮らしやすい家ができて、とても満足しています。
担当者の声
山田 外志雄

物をあふれさせたくないというご希望を受け、食品と日用雑貨をまるごと収納できるパントリーや玄関ホールの壁面収納など、豊富な収納スペースを設けました。
ビフォーアフター
ビフォー

アフター

長期優良住宅化リフォーム推進事業の物件

ビフォー

アフター

このリフォームで採用したパナソニック商品
施工店情報
パナソニックリフォームクラブ
宏州建設株式会社
(旧:リファイン金沢駅西)

〒920-0025
住所:石川県金沢市駅西本町1丁目3番15号
電話:076-263-5355 FAX:076-263-5357

■運営会社名 宏州建設株式会社
■建設業 石川県知事許可(特-4)第3169号
■建築士事務所 一級建築士事務所:石川県知事登録第1967号

このお店の情報・事例を見る
宏州建設株式会社(旧:リファイン金沢駅西)のリフォーム事例一覧
このお店の他の事例を見る
ページの先頭へ