| 建物種別 | 戸建て |
|---|---|
| 改修規模 | 全面リフォーム |
| 築年数 | 築30年 |
| 総工事面積 | 約115m2 |
| 施工期間 | 約150日 |
| 総工事費 | 約2100万円 |
| 地域 | 石川県 |
| 家族構成 | 夫婦 |
| テーマ | 団らんキッチン、オール電化、その他 |
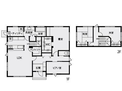
長期優良住宅化リフォーム推進事業の物件
オール電化になり安心。リビングに床暖房を設置し、冬もあたたかく過ごせます。
遮音性の高い鉛シートを張り、吸音板を施工。ご近所を気にすることなくピアノの練習が可能に。
玄関にはシュークローゼットとは別に物入れを設置。細々した荷物を収納することができます。
入り口を変え、和風の趣を残しつつ生まれ変わった玄関。敷石が重厚感を演出します。
結婚された息子さんのために改修することとなった、K様所有の古い家。「間取りも使い勝手も悪く寒い。あたたかく快適な若夫婦のための家を」とのリクエストに応え、床暖房と高性能断熱材を用いてあたたかさをアップしました。音楽家である若奥様のために防音性能の高いピアノ室を新設。各部屋には収納も設けて、ストレスのない快適な新生活をサポートします。

長期優良住宅化リフォーム推進事業の物件
