| 建物種別 | 戸建て |
|---|---|
| 改修規模 | 全面リフォーム |
| 築年数 | 築30年 |
| 施工期間 | 約150日 |
| 地域 | 石川県 |
| 家族構成 | 夫婦 |
| テーマ | 団らんキッチン、オール電化、その他 |
長期優良住宅化リフォーム推進事業の物件
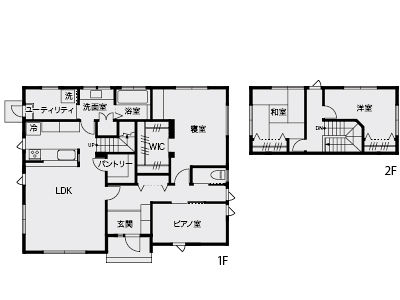
オール電化になり安心。リビングに床暖房を設置し、冬もあたたかく過ごせます。
遮音性の高い鉛シートを張り、吸音板を施工。ご近所を気にすることなくピアノの練習が可能に。
オール電化で安心。床暖房を設置し、高性能断熱材を用いて、あたたかいリビングを実現。
ピアノ練習が気兼ねなくできるように、遮音性の高い鉛シートを張り、吸音板を施工し、練習が気兼ねなくできる防音室を新設しました。

長期優良住宅化リフォーム推進事業の物件
