PanasonicリフォームClub
TOP TOPリフォーム事例検索検索結果詳細

神奈川県 T様邸

水まわりもおしゃれに

お店の情報・お問い合わせ  このお店の他の事例を見る
データ
建物種別 戸建て
改修規模 全面リフォーム
築年数 築17年
施工期間 約70日
地域 神奈川県
家族構成 夫婦+子供2人
テーマ 団らんキッチン、ペット、広々、その他
全国の「Panasonic リフォーム Club」のお店をさがす
お客様の声
想像以上に住み心地がよくなりました。
担当者の声
横田 純一

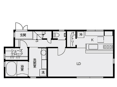
ご家族がリビングに集まるというライフスタイルは変えず、間取りを整理したり、スペースを広げたりすることで、暮らし方のワンランクアップを目指しました。
ビフォーアフター
ビフォー

アフター

このリフォームで採用したパナソニック商品
施工店情報
パナソニックリフォームクラブ
株式会社マルナカホーム リノベーション事業部

〒223-0057
住所:神奈川県横浜市港北区新羽町896
電話:045-545-9211 FAX:045-545-9935

■運営会社名 株式会社マルナカホーム
■建設業 神奈川県知事許可(特-5)第59716号
■建築士事務所 ニ級建築士事務所:神奈川県知事登録第10579号

このお店の情報・事例を見る
株式会社マルナカホーム リノベーション事業部のリフォーム事例一覧
このお店の他の事例を見る
ページの先頭へ