PanasonicリフォームClub
TOP TOPリフォーム事例検索詳細

滋賀県 M様邸

ホテルライクな一体型の洗面室
ガラス壁の明るいバスルーム

お店の情報・お問い合わせ  このお店の他の事例を見る
データ
建物種別 マンション
改修規模 全面リフォーム
築年数 築38年
施工期間 約45日
地域 滋賀県
家族構成 1人
テーマ 広々
全国の「Panasonic リフォーム Club」のお店をさがす
リフォームポイント

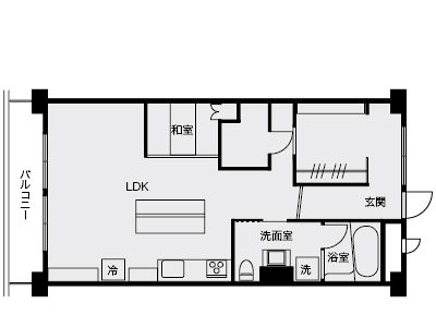
トイレは洗面室と一緒にした省スペース設計。バスルームはガラス壁にして、マンションにありがちな暗く狭い雰囲気を解消しました。

お客様の声
大好きなBARのような雰囲気の中でお酒を楽しんでいます。
担当者の声
正木 宏二

M様のような男のこだわりの空間づくりをカタチに。お客様が叶えたいライフスタイルをサポートします。
ビフォーアフター
ビフォー

アフター

施工店情報
パナソニックリフォームクラブ
リファイン守山 株式会社東和不動産
(旧:リファイン守山)

〒524-0022
住所:滋賀県守山市守山3丁目2番33号
電話:077-582-8881 FAX:077-582-0030

■運営会社名 株式会社東和不動産
■建設業 滋賀県知事許可(特-4)第21814号
■建築士事務所 一級建築士事務所:滋賀県知事登録(二)第2038号

このお店の情報・事例を見る
リファイン守山 株式会社東和不動産(旧:リファイン守山)のリフォーム事例一覧
このお店の他の事例を見る
ページの先頭へ