| 建物種別 | 戸建て |
|---|---|
| 改修規模 | 全面リフォーム |
| 築年数 | 築50年 |
| 工事面積 | 約35m2 |
| 施工期間 | 約300日 |
| 工事費 | 約200万円 和室3室の工事費用です。 |
| 地域 | 大阪府 |
| 家族構成 | 世帯 人 |
| テーマ | 二世帯、バリアフリー、介護、明るい部屋、広々、その他 |
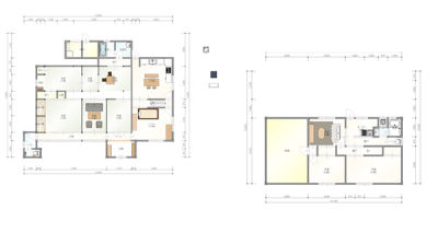
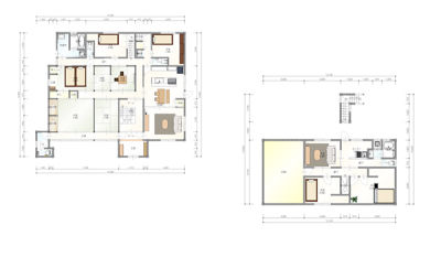
押入れだった部分を板の間にして窓を設置。当初は掃出し窓にしようかという案もございましたが、荷物を片付ける場所も必要とのことで、腰窓にして鏡台や棚等を設置できるようにいたしました。

LDKの真ん中に階段があることにより小さな部屋に分断されてしまっております。

階段を玄関前に新設。
元階段の両脇の抜けない柱を利用して収納及び3枚引き込み扉の戸袋へ。