PanasonicリフォームClub
TOP TOPリフォーム事例検索詳細

大阪府 N 様

2世帯住宅の世代交代

お店の情報  このお店の他の事例を見る
データ
建物種別 戸建て
改修規模 全面リフォーム
築年数 築50年
総工事面積 約237m2
施工期間 約300日
総工事費 約3443万円
地域 大阪府
家族構成 世帯 人
テーマ 二世帯、バリアフリー、介護、明るい部屋、広々、その他
全国の「Panasonic リフォーム Club」のお店をさがす
リフォームポイント

2世帯住宅6名で暮らしているお客様。親世帯も高齢化してきたので世代交代をお考えになったことがきっかけ。1階に老夫婦2人で、2階に若夫婦と孫の4名でお暮しでした。世代交代及び今後の介護の事も考えて若夫婦が1階に下りてくることに。日常で使える部屋が少なく、各所に段差がありました。老夫婦も快適安全に、若夫婦も介護がしやすく快適に暮らせる住まいをご希望でした。

お客様の声
今までは暗いイメージの室内が、白を基調としたことで、明るく広い空間を作り出すことができました。
親世帯と子世帯・孫たちと生活リズムが異なる世代がそれぞれを尊重し、気兼ねなく暮らしていける動線が確立できました。
担当者の声
古賀 恵

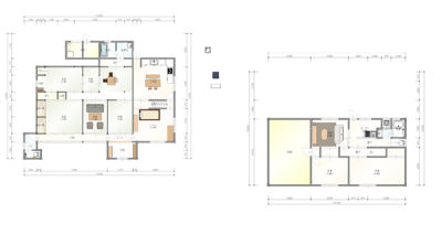
LDKと応接室の間に階段があることにより部屋を分断しておりました。
広い空間をご提案するには、LDKの真ん中に階段を設けるか、別の箇所に
新たに階段を設けるかということが一番の難関でした。
お孫様は年頃の女の子で、LDKの真ん中の階段を上がって2階に上がることは抵抗を感じられておりました、
階段を玄関前の和室に設置することとなりました。
ゆくゆくの介護を考えて、できる限りのバリアフリーといたしました。
建物が蔵・駐車小屋等の建物に囲まれているため、北側はほとんど光が差し込まない状況でしたので、白を基調としたインテリアでコーディネートいたしました。
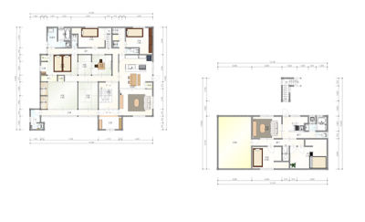
ビフォーアフター
ビフォー

広いキッチンだけども物があふれている。6人掛けのテーブルを置くと身動きが取れない状況に。

アフター

LDKを広々と空間としました。
元階段部分の柱を生かして収納を設置。壁には間接照明付の飾り棚を設置

ビフォー

キッチンの反対に位置する元応接室。キッチンとの間の壁を取り払い階段を別の場所に移設すると広々とした空間が広がります。

アフター

LDKのクロスに変化を持たせることとしましたが、空間に広がりを出すため、間接照明付の壁を設置

ビフォー

LDKの間に立ちはだかる階段。
勾配もきつく、老夫婦はここ何年も2階に上がることが無いそうです。

アフター

キッチンとリビングの間に可動棚を設けることで、必要な時に部屋を区切ることができます。

ビフォー

重厚感のある玄関ホール。
高級感の演出にはなりますが、
お客様を迎え入れるだけの部屋。
有効活用できないかと。

アフター

玄関ホールの和室部分に階段を設置。
圧迫感を与えないために、階段下部分の空間を有効に利用し、ダウンライトに照らされる生け花の飾り場所となりました。

ビフォー

荷物があふれていた廊下
廊下の機能が全く果たせて
おりませんでした。

アフター

廊下に手摺を設けて、白を基調と
することで、広々とした明るい
廊下となりました。

ビフォー

LDKの真ん中に階段があることにより小さな部屋に分断されてしまっております。

アフター

階段を玄関前に新設。
元階段の両脇の抜けない柱を利用して収納及び3枚引き込み扉の戸袋へ。

施工店情報
パナソニックリフォームクラブ
大和工業株式会社 大阪南支店
(旧:リファイン三日市)

〒586-0048
住所:大阪府河内長野市三日市町191-2
電話:0721-62-3350 FAX:0721-62-5119

■運営会社名 大和工業株式会社
■建設業 国土交通大臣許可(特-7)第23517号
■建築士事務所 一級建築士事務所:大阪府知事登録(へ)第18557号

このお店の情報・事例を見る
大和工業株式会社 大阪南支店(旧:リファイン三日市)のリフォーム事例一覧
このお店の他の事例を見る
ページの先頭へ