| 建物種別 | 戸建て |
|---|---|
| 改修規模 | 全面リフォーム |
| 築年数 | 築50年 |
| 工事面積 | 約10m2 |
| 施工期間 | 約300日 |
| 工事費 | 約180万円 4箇所のトイレ工事です。 |
| 地域 | 大阪府 |
| 家族構成 | 世帯 人 |
| テーマ | 二世帯、バリアフリー、介護、明るい部屋、広々、その他 |
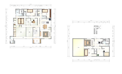
親世帯と子世帯。生活のリズムも違うので、それぞれ用のトイレを設置。
各部屋から近いところにトイレを設けることで、流す音等を気にせずに生活することができます。
親世帯用のトイレには壁までパネルを貼り、掃除をしやすいようにいたしました。


LDKの真ん中に階段があることにより小さな部屋に分断されてしまっております。

階段を玄関前に新設。
元階段の両脇の抜けない柱を利用して収納及び3枚引き込み扉の戸袋へ。