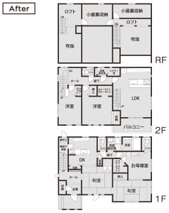
築100年を超えるお住まいが震災によって全壊したことから、それまで旧家を支えてきたお母様のために建替を決意されたN様。冬の寒さが厳しくお困りでもあったため、床暖房や浴室暖房を取り入れた住む人に優しい空間へリフォーム。N様専用の2階リビングはゆっくりくつろげるホームシアター仕様とし、お母様の過ごす空間は手すりを設けるなどバリアフリーな配慮が行き届いています。
〒982-0832 住所:宮城県仙台市太白区八木山緑町8-40 電話:022-305-1181 FAX:022-305-1182
■運営会社名 株式会社やえがし工務店 ■建設業 宮城県知事許可(特-6)第18292号 ■建築士事務所 一級建築士事務所:宮城県知事登録第18910097号