| 建物種別 | 戸建て |
|---|---|
| 改修規模 | 全面リフォーム |
| 築年数 | 築100年 |
| 施工期間 | 約120日 |
| 地域 | 長野県 |
| 家族構成 | 2人 |
| テーマ | 古民家再生、自然素材 |
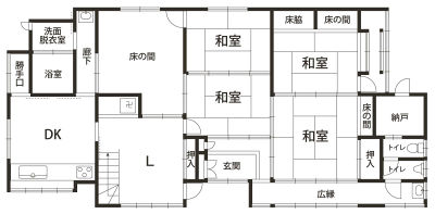
築100年のK様邸。使い勝手に不便を感じていたため、思い切ってリフォームすることに。一番のご希望は、長年住まいを支え続けてきた梁組を活かしたレトロ感のある住まいでした。そこで、隠れていた柱や梁をあらわしに。重厚感ある木目の味わいに、自然素材の塗り壁が美しいコントラストを生みました。インテリアや照明は、奥様が大好きだとおっしゃるアンティーク調に統一。和と洋の古き良き魅力が調和した住まいが生まれました。

