PanasonicリフォームClub
TOP TOPリフォーム事例検索詳細

愛知県 K様邸

お客様を迎える顔 庭との融合

お店の情報・お問い合わせ  このお店の他の事例を見る
データ
建物種別 戸建て
改修規模 増改築
築年数 築70年
施工期間 約130日
地域 愛知県
家族構成 夫婦+子1人
テーマ 古民家再生
全国の「Panasonic リフォーム Club」のお店をさがす
リフォームポイント

庭も完成してひと段落。
古民家の風合いを残しつつ、間取りを変え太陽光発電も載せ、最新設備で生活のしやすい住まいに生まれ変わりました。文字通り、古民家再生。

お客様の声
「一番の見所は玄関でしょう」
そう話されるK様は、「①丸太をどう見せるか②引き戸を開けた人がアッと驚くインパクトある玄関にするには・・
この2つのリフォームテーマを満たすため営業担当者に色々案を出してもらい話し合いました。」
結果、満足のいく仕上がりとなり、リフォームを勧めてくれた兄弟達にも大好評でした。
担当者の声
後藤和弘

役目を果たし終えようとしていた住まいでしたが、建替えかリフォームをどちらにするか検討し、兄弟達の生まれ育った家を残して欲しいという言葉に心動かされ愛着あるこの家にもう一度命を吹き込むことを決心しリフォーム。手を入れ想いを込め、愛おしいほどに蘇りました。
ビフォーアフター
ビフォー

アフター

住まいだけではなく外構もトータルで再生。

ビフォー

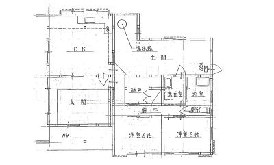
親の代に畑で採れる野菜を出荷。今は物置になっている。少し狭い寝室やトイレ・風呂などゆっくり心を癒せる所が希望。

アフター

風呂やトイレの位置を変え、毎日使う寝室を広くし、各部屋にクローゼットをたくさん取付ました。玄関・リビング・キッチンは広く安らぐ空間が実現しました。

このリフォームで採用したパナソニック商品
施工店情報
パナソニックリフォームクラブ
株式会社ナイスホーム
(旧:リファイン安城)

〒446-0074
住所:愛知県安城市井杭山町高見3番地1
電話:0566-77-5871 FAX:0566-77-5832

■運営会社名 株式会社ナイスホーム
■建設業 愛知県知事許可(特-4)第57195号
■建築士事務所 一級建築士事務所:愛知県知事登録(い-5)第12668号

このお店の情報・事例を見る
株式会社ナイスホーム(旧:リファイン安城)のリフォーム事例一覧
このお店の他の事例を見る
ページの先頭へ