| 建物種別 | 戸建て |
|---|---|
| 改修規模 | 増改築 |
| 築年数 | 築70年 |
| 総工事面積 | 約121m2 |
| 施工期間 | 約130日 |
| 総工事費 | 約2400万円 |
| 地域 | 愛知県 |
| 家族構成 | 夫婦+子1人 |
| テーマ | 古民家再生 |
来客者を圧巻する玄関。
長年住まいを支えた丸太が鮮烈に蘇える。
お店で食事をしているかのような錯覚に陥ってしまうお洒落な空間。設備はひとつひとつ吟味して決めました。
毎日の食事の時間が待ち遠しくなります。
構造上必要なのでとれない柱も活用して隠し収納棚に。
庭を眺めながらゆっくりする時間がお気に入り。
住まいだけではなく外構もトータルで再生。
役目を果たし終えようとしていた住まい。構造の柱や梁から建具一つにいたるまで、太い良材が惜しげもなく使われていました。 中にはもうお金では替えられないような銘木も見られ、それらはご家族にとってかけがえのない財産。住まいに手を入れ想いを込め、愛おしいほどに蘇りました。
玄関に収納を設け、その目隠しとして梁に見劣らないパーテーションを置き、来客を迎えます。
広さを生かした玄関にしたい。先祖が造った丈夫な柱や梁、活かせるならいかしたい。

来客者を圧巻する玄関。

長年住まいを支えた丸太が鮮烈に蘇える。
収納が少なく設備の配置も使いにくったので、ついつい乱雑になりがちだった。

お店で食事をしているかのような錯覚に陥ってしまうお洒落な空間。設備はひとつひとつ吟味して決めました。
毎日の食事の時間が待ち遠しくなります。

構造上必要なのでとれない柱も活用して隠し収納棚に。
和室をフローリングにし、ソファでくつろげるリビングにしたい。

庭を眺めながらゆっくりする時間がお気に入り。
親の代に畑で採れる野菜を出荷。今は物置になっている。少し狭い寝室やトイレ・風呂などゆっくり心を癒せる所が希望。

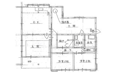
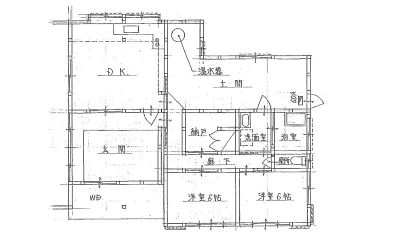
風呂やトイレの位置を変え、毎日使う寝室を広くし、各部屋にクローゼットをたくさん取付ました。玄関・リビング・キッチンは広く安らぐ空間が実現しました。