| 建物種別 | マンション |
|---|---|
| 改修規模 | 全面リフォーム |
| 築年数 | 築12年 |
| 工事面積 | 約32m2 |
| 施工期間 | 約30日 |
| 工事費 | 約130万円 |
| 地域 | 愛知県 |
| 家族構成 | ご夫婦、娘さん、息子さんの4人家族 |
| テーマ | 団らんキッチン、その他 |
床の色を明るく、オープンキッチンに変更し、ダイニング・リビングとつながりのある空間へ。
カウンターを広く取り、収納を増やした。これで、奥様がキッチンに立っていても家族団らんの時間となる。
ダウンライトを増やし、メイン照明を作らず、小さい明かりを拡散する事でお部屋の隅々まで明るくすっきりとした印象となる。
つながった空間でひろびろとしたイメージになった。
建具を濃いブラウンからホワイトに変える事で、すっきりとした印象。また、上から下までの採光で廊下とのつながりもあるので、廊下側から見ても明かりがとれる。
床の色を明るくすることで、部屋全体が広く感じる事ができる。
また、照明もダウンライトにする事で、すっきりとした印象にみせた。


キッチンが少し閉鎖的な印象・・・。床の色も暗い。

床の色を明るく、オープンキッチンに変更し、ダイニング・リビングとつながりのある空間へ。
小さな小窓から奥様がキッチンしている姿が見えたり見えなったり・・・。奥様から見ても、お子様が何をしているのか様子が分かり辛い!

カウンターを広く取り、収納を増やした。これで、奥様がキッチンに立っていても家族団らんの時間となる。
中央にシーリングライトを取り付ける一般的な照明。

ダウンライトを増やし、メイン照明を作らず、小さい明かりを拡散する事でお部屋の隅々まで明るくすっきりとした印象となる。

つながった空間でひろびろとしたイメージになった。

建具を濃いブラウンからホワイトに変える事で、すっきりとした印象。また、上から下までの採光で廊下とのつながりもあるので、廊下側から見ても明かりがとれる。
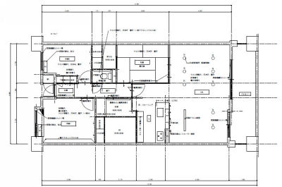
キッチンが壁で囲まれており、キッチンに入るとリビングの様子がまったく見えない間取りでした。

キッチンが対面の配置になっている事を活かし、LDKをつながりのある空間に変更。
さらにキッチン横(廊下側)にあった上から下までの収納を無くす事で、圧迫感がなくなった。