PanasonicリフォームClub
TOP TOPリフォーム事例検索検索結果詳細

愛知県 S様邸 改修工事

【お部屋ひろびろ!明るいLDK】

お店の情報・お問い合わせ  このお店の他の事例を見る
データ
建物種別 マンション
改修規模 全面リフォーム
築年数 築12年
工事面積 約32m2
施工期間 約30日
工事費 約130万円
地域 愛知県
家族構成 ご夫婦、娘さん、息子さんの4人家族
テーマ 団らんキッチン、その他
全国の「Panasonic リフォーム Club」のお店をさがす
リフォームポイント

床の色を明るくすることで、部屋全体が広く感じる事ができる。
また、照明もダウンライトにする事で、すっきりとした印象にみせた。

お客様の声
リビングを開放的にしたい。赤茶の床色を明るい床にしたいけど、どんな床材が合うのか分からない。
担当者の声
河合 輝治

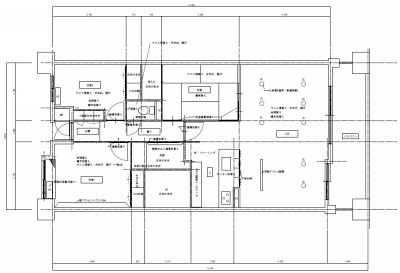
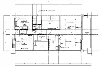
もともと4LDKの間取りを部屋の一部を撤去し、3LDKとして使用で来る間取りに改装してありましたが、キッチンが閉鎖的で、キッチンで作業している時はリビングの様子がまったく見えない状況でした。何度かお客様と打ち合わせをして、お客様のイメージに近いリビングに仕上がったと思います。
ビフォーアフター
ビフォー

キッチンが少し閉鎖的な印象・・・。床の色も暗い。

アフター

床の色を明るく、オープンキッチンに変更し、ダイニング・リビングとつながりのある空間へ。

ビフォー

小さな小窓から奥様がキッチンしている姿が見えたり見えなったり・・・。奥様から見ても、お子様が何をしているのか様子が分かり辛い!

アフター

カウンターを広く取り、収納を増やした。これで、奥様がキッチンに立っていても家族団らんの時間となる。

ビフォー

中央にシーリングライトを取り付ける一般的な照明。

アフター

ダウンライトを増やし、メイン照明を作らず、小さい明かりを拡散する事でお部屋の隅々まで明るくすっきりとした印象となる。

ビフォー

アフター

つながった空間でひろびろとしたイメージになった。

ビフォー

アフター

建具を濃いブラウンからホワイトに変える事で、すっきりとした印象。また、上から下までの採光で廊下とのつながりもあるので、廊下側から見ても明かりがとれる。

ビフォー

キッチンが壁で囲まれており、キッチンに入るとリビングの様子がまったく見えない間取りでした。

アフター

キッチンが対面の配置になっている事を活かし、LDKをつながりのある空間に変更。
さらにキッチン横(廊下側)にあった上から下までの収納を無くす事で、圧迫感がなくなった。

施工店情報
パナソニックリフォームクラブ
リファイン大須四丁目 株式会社ジツダヤ
(旧:リファイン大須四丁目)

〒460-0011
住所:愛知県名古屋市中区大須4-14-26ジツダビル1F
電話:052-212-5228 FAX:052-261-2565

■運営会社名 株式会社ジツダヤ
■建設業 愛知県知事許可(特-5)第39268号
■建築士事務所 一級建築士事務所:愛知県知事登録(い-5)第14267号

このお店の情報・事例を見る
リファイン大須四丁目 株式会社ジツダヤ(旧:リファイン大須四丁目)のリフォーム事例一覧
このお店の他の事例を見る
ページの先頭へ