PanasonicリフォームClub
TOP TOPリフォーム事例検索詳細

宮城県 K.H様邸

ライフスタイルの変化に合わせ、寝室周りを快適に!!

お店の情報・お問い合わせ  このお店の他の事例を見る
データ
建物種別 戸建て
改修規模 改装・設備交換
築年数 築40年
施工期間 約180日
地域 宮城県
家族構成 夫婦2人
テーマ バリアフリー、耐震
全国の「Panasonic リフォーム Club」のお店をさがす
リフォームポイント

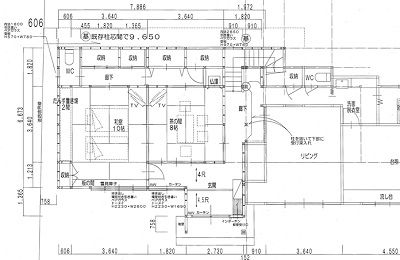
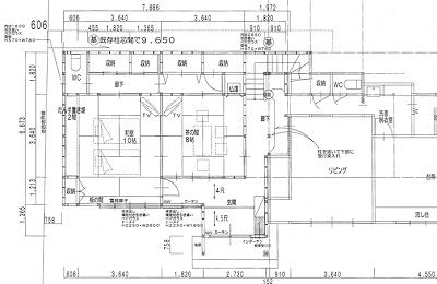
狭かった寝室を広げ、バリアフリーを考え広縁との段差を無くし、ゆっくり休める寝室になりました。

お客様の声
住みやすい、利用しやすい現代的な設計で大変喜ばしいです。
ビフォーアフター
ビフォー

アフター

ビフォー

アフター

施工店情報
パナソニックリフォームクラブ
株式会社やえがし工務店

〒989-1245
住所:宮城県柴田郡大河原町字新南20-5
電話:0224-52-8222 FAX:0224-52-0121

■運営会社名 株式会社やえがし工務店
■建設業 宮城県知事許可(特-6)第18292号
■建築士事務所 一級建築士事務所:宮城県知事登録第18910097号

このお店の情報・事例を見る
株式会社やえがし工務店のリフォーム事例一覧
このお店の他の事例を見る
ページの先頭へ