PanasonicリフォームClub
TOP TOPリフォーム事例検索検索結果詳細

宮城県 K.H様邸

ライフスタイルの変化に合わせ、寝室周りを快適に!!

お店の情報・お問い合わせ  このお店の他の事例を見る
データ
建物種別 戸建て
改修規模 改装・設備交換
築年数 築40年
施工期間 約180日
地域 宮城県
家族構成 夫婦2人
テーマ バリアフリー、耐震
全国の「Panasonic リフォーム Club」のお店をさがす
リフォームポイント

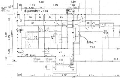
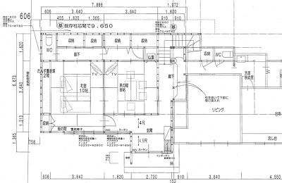
2階の一部を撤去し、屋根も瓦から鉄板にすることで耐震性もアップしました。またサッシもペアガラスとし断熱性も向上しています。

お客様の声
住みやすい、利用しやすい現代的な設計で大変喜ばしいです。
ビフォーアフター
ビフォー

アフター

ビフォー

アフター

施工店情報
パナソニックリフォームクラブ
株式会社やえがし工務店

〒989-1245
住所:宮城県柴田郡大河原町字新南20-5
電話:0224-52-8222 FAX:0224-52-0121

■運営会社名 株式会社やえがし工務店
■建設業 宮城県知事許可(特-6)第18292号
■建築士事務所 一級建築士事務所:宮城県知事登録第18910097号

このお店の情報・事例を見る
株式会社やえがし工務店のリフォーム事例一覧
このお店の他の事例を見る
ページの先頭へ