PanasonicリフォームClub
TOP TOPリフォーム事例検索検索結果詳細

岐阜県 T様邸

シンプルで・明るく・清潔で・暖かく・一家団欒の水廻りリフォーム

お店の情報  このお店の他の事例を見る
データ
建物種別 戸建て
改修規模 改装・設備交換
築年数 築30年
総工事面積 約29.13m2
施工期間 約37日
総工事費 約495万円
地域 岐阜県
家族構成 2世帯6人(大人3人、子供3人)
テーマ 二世帯、バリアフリー
全国の「Panasonic リフォーム Club」のお店をさがす
リフォームポイント

洗面脱衣室やDKの暗さを解消する為に脱衣室南北壁面上部に明り取りを設け、タイル貼りの浴室の寒さ対策の為、省エネ住宅ポイントを利用し床暖房・暖房換気乾燥機・保温浴槽標準仕様のリフォムスバスをご提案。また、離れと母屋の電気メーターが別々の為、光熱費削減の為に母屋をオール電化に改修しメーターを統一した。お母様の今後の高齢化に伴い改修箇所の床を段差解消とした。

お客様の声
全体に明るくなり、浴室の床も暖かく、酸素美泡湯も家族全員に好評です。脱衣室に脱衣室暖房換気乾燥機を設置したので冬場や梅雨時も多くの衣類が干せるようになり嬉しいです。キッチンもパパパシンクでお掃除もしやすく、また調理時のカウンターの水漏れを防ぐ工夫も気に入っています。
担当者の声
石田 肇

水廻りのリフォーム。母屋にお母さんが住まわれ、3人の子供さんとご夫婦が離れ2階で生活してましたが、子供さんの成長とともに居住スペースが手狭になり、離れから母屋に住まわれる計画となりました。それに伴い築年数とともに設備機器の老朽化と冬場は暗くて寒いとのご相談を受けました。寒さ対策として今だからこそご提案できる省エネ住宅ポイントを利用し床暖房・暖房換気乾燥機・保温浴槽標準仕様のリフォムスバスをご提案しました。また、洗面脱衣室やDKの暗さを解消する為に脱衣室南北壁面上部に明り取りを設け、ホワイト色も取り入れ明るい空間を作りました。
ビフォーアフター
ビフォー

古くなった流し台を取替し、明るく清潔感のある仕上がりにしたい。

アフター

カラーをホワイトにし、明るく清潔感のあるキッチンになりました。内装下げ材色も明るめの色調で、キッチンパネルもネオナイーブ柄ホワイト使用。

ビフォー

お掃除しやすく、冬場でも温かいお風呂に入りたい。

アフター

浴室サッシガラスをペアガラスに交換し、省エネ住宅ポイントを利用。床暖房・暖房換気乾燥機・酸素美泡湯で寒さ対策バッチリ!

ビフォー

アフター

スゴピカカウンター・ささっと排水口・カビシャット・暖房換気乾燥機つきで汚れにくく、お掃除も楽チン。

ビフォー

掃除がしやすい広さと手洗い等の動作をスムーズになるようにしたい。

アフター

すっきりとした小さめのボディと自動便器洗浄でお掃除も簡単。さらに手洗いカウンター付きにし、手洗いもしやすくなりました。

ビフォー

寒さ軽減とタオルや小物類をすっきり整理し隠せるようにしたい。

アフター

オーダー感覚で自由にプランニングできるラシスをたっぷり収納できるサイズにしました。とてもすっきりな洗面台に。

ビフォー

洗面の横に勝手口があり冬場は寒い。

アフター

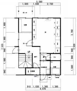
浴室を広くした。洗面脱衣室の配置を変え、またDKの部分を減らし大きくした事で使いやすくなった。

このリフォームで採用したパナソニック商品
現行のおすすめ商品
施工店情報
パナソニックリフォームクラブ
リファインおおがき 株式会社イッシン
(旧:リファインおおがき)

〒503-0917
住所:岐阜県大垣市神田町1丁目76番地
電話:0584-82-3611 FAX:0584-82-3633

■運営会社名 株式会社イッシン
■建設業 岐阜県知事許可(般-4)第12834号
■建築士事務所 一級建築士事務所:岐阜県知事登録第8828号

このお店の情報・事例を見る
リファインおおがき 株式会社イッシン(旧:リファインおおがき)のリフォーム事例一覧
このお店の他の事例を見る
ページの先頭へ