| 建物種別 | 戸建て |
|---|---|
| 改修規模 | 増改築 |
| 築年数 | 築30年 |
| 総工事面積 | 約118m2 |
| 施工期間 | 約60日 |
| 地域 | 千葉県 |
| 家族構成 | ご夫婦+ご主人と奥様のお母様 |
| テーマ | バリアフリー、介護、明るい部屋、オール電化 |
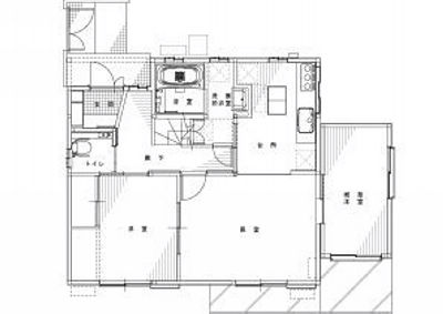
介護が必要なご夫婦双方のお母様が同居すると言う事で、1階のリビング、キッチン、洗面浴室、トイレ、廊下、洋室は、車椅子で動き易くするために段差を解消。浴室は1坪タイプに、トイレは車椅子で入れるように広げました。また、省エネ実現のため、太陽光とエコキュートを設置してオール電化に、キッチン、浴室、トイレは節水タイプにしました。そしてそれに合わせ、屋根と外壁の改修と塗装を行いました。






