PanasonicリフォームClub
TOP TOPリフォーム事例検索詳細

秋田県 T様邸

収納がないため片付けしづらい。

お店の情報・お問い合わせ  このお店の他の事例を見る
データ
建物種別 マンション
改修規模 全面リフォーム
築年数 築22年
地域 秋田県
家族構成 夫婦+子供1人
テーマ 団らんキッチン、明るい部屋、オール電化、その他
全国の「Panasonic リフォーム Club」のお店をさがす
お客様の声
使い勝手の悪かった間取を要望以上の形にしてくれました。               動線も改善され効率のよい家事ができるようになり、またキッチンが半独立スタイルなので趣味の料理に没頭できるのが嬉しいです。適材適所に収納があるので部屋が散らかることもなく快適に生活できています。
担当者の声
中古マンション購入の際にリフォームも併せてご依頼いただきました。細切れで使い勝手の悪い間取、少ない収納、老朽化した設備。これらを全て改善するため躯体のみを残した大幅リフォームをご提案いたしました。奥様の趣味がお料理だと伺っておりましたので、ご家族の気配を感じながらもお料理に没頭できる半独立スタイルのキッチンをご提案し娘さんとも並んでお料理ができるスペースを確保しました。また、ご家族の持ち物をヒアリングし、適材適所に収納を設けました。ご家族が自然とリビングに集まるようなリフォームを目指しました。
ビフォーアフター
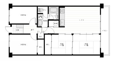
ビフォー

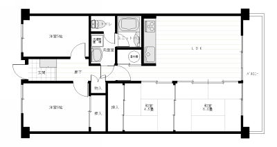
アフター

ビフォー

間取か細切れで使い勝手が悪い

アフター

このリフォームで採用したパナソニック商品
  • 床材 ウッディA45耐熱リアロC[終了品]
施工店情報
パナソニックリフォームクラブ
株式会社イケコウ
(旧:リファインあきた中央)

〒010-0001
住所:秋田県秋田市山王中島町9番23号山王LINKSビル1階
電話:018-827-3870 FAX:018-827-3880

■運営会社名 株式会社イケコウ
■建設業 秋田県知事許可(般-4)第11955号
■建築士事務所 二級建築士事務所:秋田県知事登録23-10B-0729号

このお店の情報・事例を見る
株式会社イケコウ(旧:リファインあきた中央)のリフォーム事例一覧
このお店の他の事例を見る
ページの先頭へ